Norrøn Bolig AS
Norrøn Bolig bygger alt fra eneboliger, rekkehus, leiligheter og fritidsboliger til større bolig- og hyttefelt. I tillegg bygger vi om og rehabiliterer boliger etter kundens ønsker.
Gå til forhandlersidenNorrøn Bolig bygger alt fra eneboliger, rekkehus, leiligheter og fritidsboliger til større bolig- og hyttefelt. I tillegg bygger vi om og rehabiliterer boliger etter kundens ønsker.
Gå til forhandlersidenI Nysundveien 10 har vi en innholdsrik 2. mannsbolig for salg i et veletablert boligfelt.
Boligene ligger på en høyde med flott utsikt over innseilingen til Egersund og har sol fra tidlig morgen til sent på kveld.
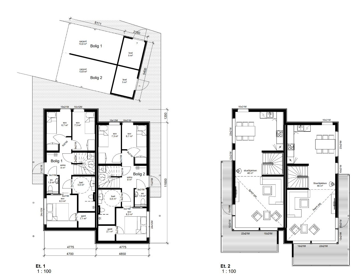
Boligene inneholder følgende:
1.etasje:
2.etasje:
Planløsninger kan endres og tilpasses dine ønsker og behov. Ta kontakt for å se på hvilke muligheter som finnes.
Boligene leveres klar for maling og gulvleggingsarbeid. Vi kan levere boligene nøkkelferdig, klar for innflytting. Ta kontakt for pris.
Nysundveien 10 priser:
Priser for bolig 1 og bolig 2: kr. 4 390 000,- klar for maler og gulvleggingsarbeid + omkostninger til staten.
Omkostninger til Staten:
Totale omkostninger: 13 850,-
Bruksareal pr. bolig:
1.etasje: 46,7 m2
2.etasje: 46,7 m2
Carport og bod: 18 m2
Totalt: 111,4 m2


Høljebakkane 12Egersund

NyeveienEgersund

Ytstebrød, EigerøyEgersund

HestnesEgersund


DyrnesbakkenEgersund

Øvre Myllarsmarka 3, RundevollEgersund

Søndre Svanesvei 17,19,23, 25Egersund