Hopp til hovedinnhold
1 / 0

Nøkkelferdig enebolig med stor terrasse og carport under oppføring i vakre Høkneslia. Tomt inkludert i prisen.

Oldtidsvegen 32 7805 Namsos
Pris fra
5 950 000 kr
Bjørnar Blengsli

Nøkkelinfo

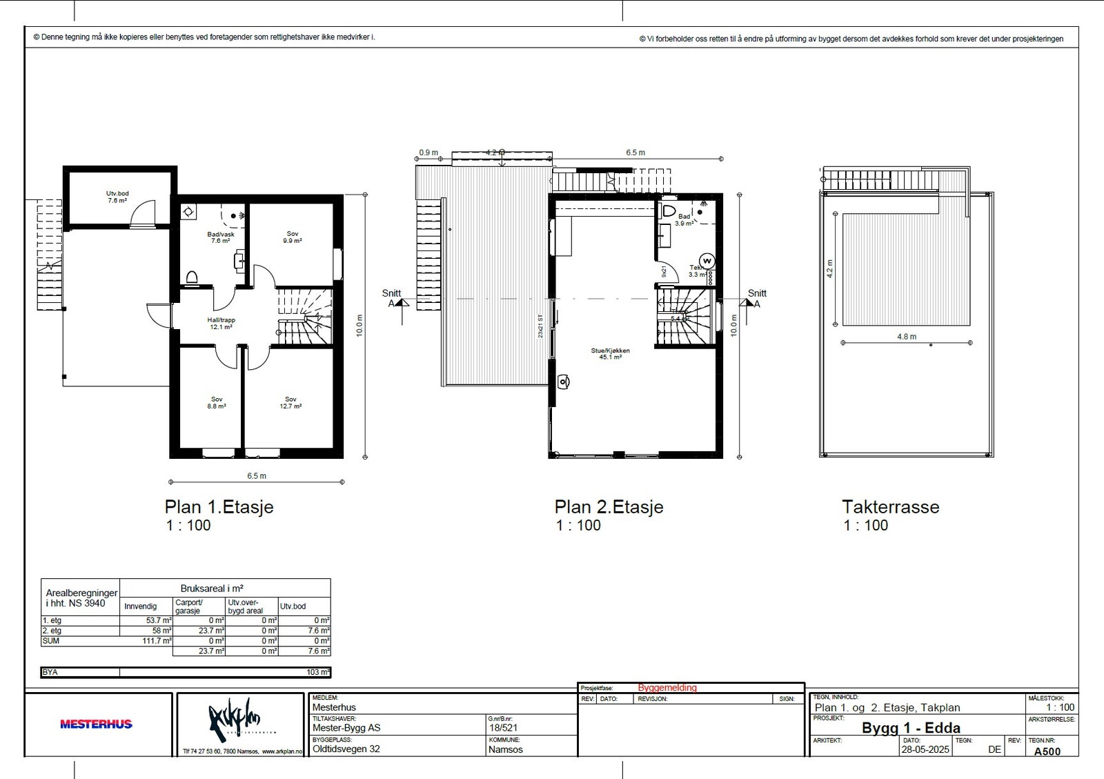
Soverom

3

Eierform

Eier (Selveier)

Boligtype

Enebolig

Gårdsnr.

18

Bruksnr.

521

Moderne funkisbolig med 3 soverom – familievennlig og energieffektiv i populære Høkneslia!

Moderne funkisbolig med 3 soverom – familievennlig og energieffektiv i populære Høkneslia!

Innholdsrik bolig med stilrent uttrykk, lavt energiforbruk og fantastisk beliggenhet nær skole, idrett og natur. Et hjem for både nåtid og fremtid.

🔹 Høydepunkter:

  • Moderne funkisstil med rene linjer og store vindusflater
  • 3 soverom – perfekt for barnefamilier eller hjemmekontor
  • Vedlikeholdsvennlig kledning i malmfuru
  • Oppgradert energistandard utover TEK17
  • Familievennlig planløsning og gode oppholdsrom
  • Solrike uteplasser for avslapning
  • Fine lekeplasser og nærmiljøanlegg med fotaballbane og lekeapparat
  • Gangavstand til skole, barnehage, idrettsanlegg og bymarka ligger rett utenfor stuevinduet
  • Rolig og barnevennlig nabolag med trygge omgivelser


Velkommen til Høkneslia – her bor du trygt, moderne og miljøvennlig i enden av gaten, Oldtidsvegen.

I et attraktivt og barnevennlig boligområde i Høkneslia finner du denne stilrene og gjennomførte eneboligen. Her kombineres funksjonell arkitektur med smarte planløsninger og fremtidsrettet byggestandard. Et hjem som passer like godt for den unge barnefamilien som for dem som ønsker god plass og moderne kvaliteter.
Boligen har en tydelig funkispreg med rene linjer og store vindusflater som slipper inn rikelig med naturlig lys. Den er oppført med malmfuru som utvendig kledning – et vakkert og vedlikeholdsvennlig materiale med lang levetid og naturlig motstand mot vær og vind.
Inne er planløsningen både åpen og praktisk, med fire romslige soverom, store oppholdsrom og god flyt mellom kjøkken, stue og utearealer. Dette er et hjem som inviterer til både sosialt samvær og rolige familiestunder.

Lavt energiforbruk – høy bokvalitet
Boligen er bygget med oppgradert energistandard utover TEK17, noe som sikrer et svært gunstig energiforbruk og et godt inneklima. Her får du moderne komfort med miljøvennlig profil – en investering som både føles og lønner seg godt over tid.

Et perfekt sted å vokse opp
Høkneslia er et svært populært boområde – kjent for sitt gode nabolag, rolige gater og nærhet til både by og natur. Her bor du:

  • Kun minutter unna barneskole, ungdomsskole og barnehager
  • Nært idrettsanlegg, fotballbaner og lekeplasser
  • Med flotte tur- og treningsmuligheter i bymarka like ved
  • Kort vei til butikker, sentrum og øvrige servicetilbud


Standard leveringsbeskrivelse:
Prisbeskrivelse nøkkelferdig bolig
Prisen for å bygge hus avhenger av flere faktorer. Hustype, husmodell, type tomt, størrelse, tilvalg, tilpasninger og geografisk plassering er de faktorene som påvirker prisen i størst grad. Den mest realistiske prisen for å bygge hus får du ved å ta kontakt med din lokale forhandler.
Dette er en generell beskrivelse av hva som er medregnet av leveranse i prisen på våre kataloghus. Prisen omfatter en nøkkelferdig bolig, uten tomt- men inkludert grunnarbeid.

Generelt
For detaljert informasjon om leveringsinnholdet henvises det til konkret pristilbud.
Innholdet i den enkelte husleveranse kan derfor avvike fra denne generelle beskrivelsen som kun er ment som en orientering om hva som normalt inngår i en husleveranse. I en konkret leveranse vil vi utarbeide kontrakt, tegninger og detaljert leveringsbeskrivelse som vil vise eksakt hva vi har avtalt.

Kvalitetssikring
Som medlem i Mesterhus har din forhandler tilgang til et omfattende kvalitetssikringssystem, som gjør at man har faste kontrollrutiner fra første kundekontakt og fram til bygget står ferdig.

Egeninnsats
Ønsker du å gjøre noen form for egeninnsats er du velkommen til det. Vi gir deg gjerne råd om hvilke arbeider du selv kan utføre, og hvilke arbeider det må benyttes godkjente firmaer til.

Tegninger
Sammen med kontrakten følger tegninger av alle planer, snitt og fasader på huset.

Skriftlig kontrakt
Mesterhus benytter kontrakter som er tilpasset gjeldende lovverk for forbrukerkjøp av boliger. Kontraktene er anbefalt benyttet av Forbrukerrådet.

Hjelp med papirmølla
Når du skal bygge nytt hus er det mye papirarbeid som må utføres. Så langt som mulig hjelper vi deg med byggesøknader, lånepapirer, ansvarsrettsøknader og lignende.

Annen nyttig informasjon
Når man skal i gang med å bygge er det mye man lurer på. Vi har laget en egen brosjyre, Mesterhus Byggeguide, med svar på de mest vanlige spørsmål vi får. Brosjyren gir deg også mye kunnskap og ideer før du går i gang med byggingen.

Sikkerhet/garantier
Forhandler stiller sikkerhet i i form av en garanti i henhold til Bustadoppføringslova. For en enebolig som selges etter NS 3425 eller 3426 vil det si 10 % av kontraktsummen i byggeperioden. Sikkerheten gjelder for feil og mangler påberopt senest ved overtakelsen. Sikkerheten reduseres deretter til 5 % som gjelder for feil og mangler som påberopes etter at boligen er overtatt, og inntil 5 år.

Forsikring
Bygget, inklusive grunnmur er forsikret fra den dato kontrakten er inngått og fram til overtagelse.

Bygningskonstruksjon
1. Yttervegger
Yttervegger leveres som isolert bindingsverksvegg med utvendig og innvendig kledning som standard. Yttervegger mot terreng, leveres som isolerte grunnmurselementer, med innvendig kledning og utvendig puss over terreng.

2. Innvendige overflater
Ønskes andre materialer kan vi selvfølgelig levere det.

3. Utvendige overflater
Grunnet bordkledning med mellomstrøk på vegg hvis ikke annet fremgår av leveringsbeskrivelsen. Enkelte hustyper kan ha annen type kledning, eksempelvis platekledninger i hele eller deler av fasaden.
Takflater tekkes med betongtakstein eller tilsvarende, eller annen egnet taktekking som folietekking eller stålplatetekking.

4. Balkong/ terrasse
Inngår balkong/terrasse i leveransen, benyttes trykkimpregnerte materialer i bærende konstruksjoner og dekke.

5. Vinduer/ytterdører
Leveres i henhold til gjeldene forskrifter og godkjent av Norsk Dør- og Vinduskontroll. Vinduer og ytterdører leveres fabrikkmalt, i hvit utførelse.

6. Innvendige dører
Leveres standard som hvitmalte formpressede dørblad, inkl. hvit karm.

7. Innvendige trapper
Trappene leveres i furu, med hvitmalte vanger/rekkverk og lakkerte trinn i eiketoning.

8. Listverk/ foringer
Leveres som fabrikkmalt, i hvit utførelse og med synlige spikerhull.

9. Kjøkken, bad og garderobe
Verdi kr 150 000.-
Boligen du kjøper inneholder en innredningspakke fra JKE Design.
Du kan selv velge om du vil bruke hele summen kun på kjøkken, eller om du vil fordele den på både kjøkken, bad og garderobe. Som boligkjøper står du selvsagt fritt til å velge en løsning utover den inkluderte innredningspakken.
Som kunde av Mesterhus vil man selvsagt fortsatt nyte godt av de gunstige prisene ved en oppgradering.

10. Balansert ventilasjon med varmegjenvinner
Boligene leveres med balansert ventilasjon, som er den vanligste formen for ventilasjon i alle nye boliger. Det sikrer et godt inneklima i alle rom og er energisparende.

11. Takrenner og beslag
Takrenner med takfotbeslag og nedløpsrør er i stål, plast eller aluminium. Sålebenk- og terskelbeslag er i plastbelagt stål. Nødvendige stigetrinn og snøfangere på tak leveres.

12. Rørleggerarbeid/ sanitærutstyr
Anlegget er komplett fra innvendig stoppekran og omfatter blant annet varmtvannsbereder, røropplegg for varmt og kaldt vann, avløp, uttak for vaskemaskin og oppvaskmaskin, ett-greps blandebatterier og sanitærutstyr.
Sanitærutstyr i hvit utførelse. På vaskerom leveres skyllekar, der dette er inntegnet. Utvendig frostfri kran inngår.

13. Elektriske installasjoner
Elektriske installasjoner leveres fra og med utvendig tilknytningsskap. Fundamentjording er ikke inkludert i leveransen.
Ledningsføringer leveres skjult i vegg og himling. I lyd-/branncelle-begrensende vegg og himling, samt på murte og støpte vegger/tak legges åpen installasjon.
Antall lampe-, bryter- og stikkontaktpunkter leveres i henhold til kontraktsdokumenter og NEK400, norm for elektriske installasjoner. Materiellet leveres i hvit utførelse.
Nødvendige lysarmaturer, varmekabler i golv våtrom, og panelovner i boligrom inngår i leveransen.

14. Grunn- og betongarbeider
Materialer og arbeider i tilknytning til radonsperre, støpt plate og grunnmur er inkludert i leveransen.
Grunnarbeider og tomtetekniske arbeider er inkludert i leveransen. Dette omfatter utstikking, utgraving av byggegrop, bortkjøring av masser, drenering, tilbakefylling, innfylling i ringmur, og planering av tomt etter utførte grunnmur/betongarbeider, samt utvendig frostsikring av grunnmur.
Framføring og frostsikring av vann og avløpsanlegg . tilkjørte masser for oppfylling og sikring med gjerder er ikk inkludert i prisen.

15. Malerarbeider
Sparkling og maling av innvendig overflater, vegg og himling, inngår i leveransen.
Overflatebehandling av gipsplatekledninger utføres i henholdt til NS3420 Del T:
- Primærrom: estetisk klasse K3
- Sekundærrom: estetisk klasse K2

16. Øvrige installasjoner og leveranser
Det leveres røykvarsler til hver etasje, samt ett brannslukningsapparat pr. boenhet.

Denne boligen kombinerer moderne design, smarte løsninger og førsteklasses beliggenhet – og gir deg og familien det lille ekstra i hverdagen.

📞 Interessert?
Ta kontakt for mer informasjon eller for å avtale tomtevisning. Dette er en bolig dere bør få muligheten til å oppleve!