Torsbygg AS
Torsbygg bygger hus og hytter i hele Øygarden, Askøy og Bergensområdet. Vi tar også på oss alt innen oppussing og rehabiliteringsoppdrag. Du finner oss på Ågotnes i Øygarden kommune.
Gå til forhandlersidenTorsbygg bygger hus og hytter i hele Øygarden, Askøy og Bergensområdet. Vi tar også på oss alt innen oppussing og rehabiliteringsoppdrag. Du finner oss på Ågotnes i Øygarden kommune.
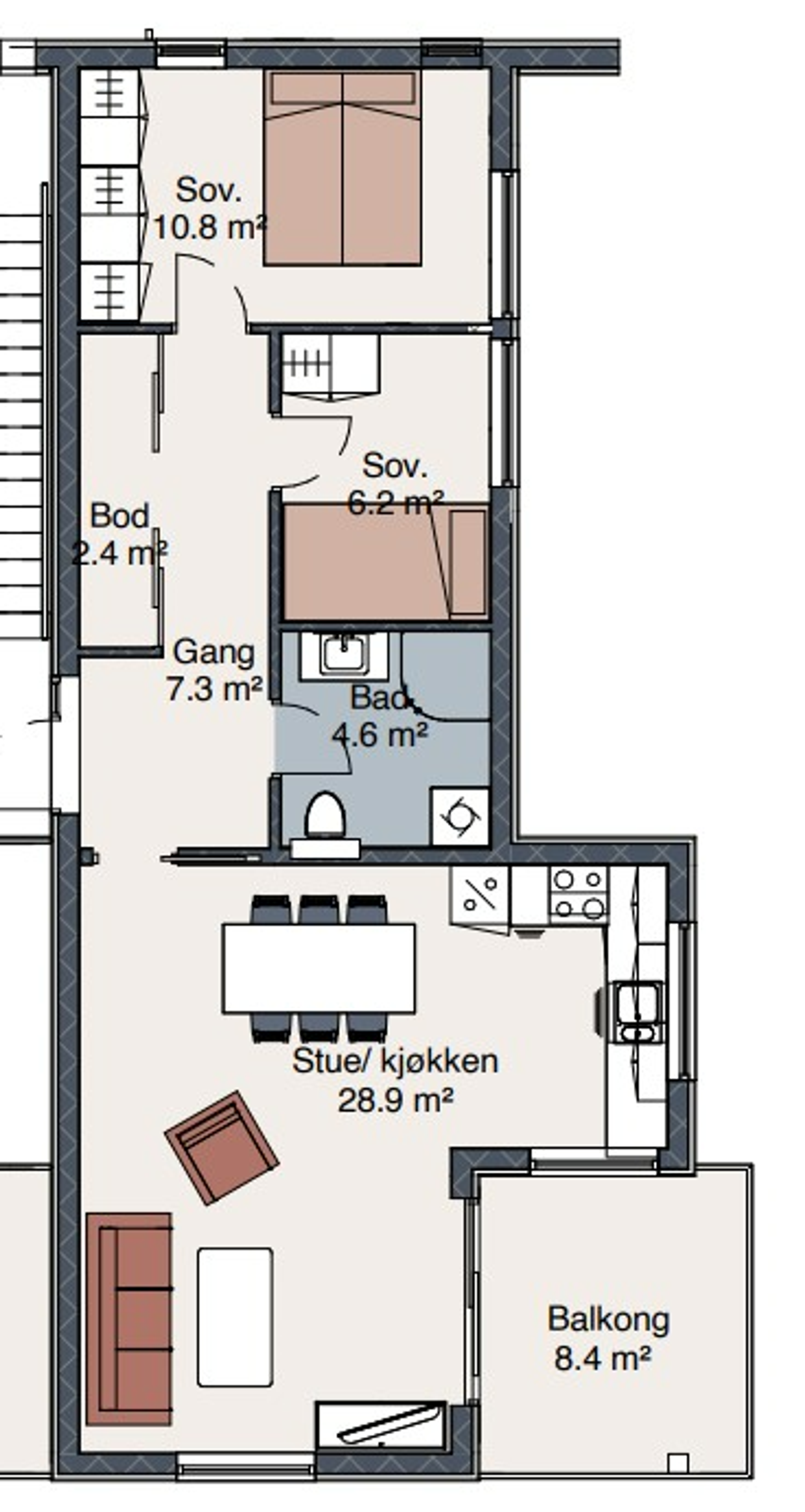
Gå til forhandlersidenHer på flotte Døscherholmen kommer det moderne fritidsboliger, med flott beliggenhet like ved sjøkanten. Hver bolig har flott havutsikt og gode solforhold fra sør/vestvendt balkong.
Døscherholmen har lang historie. Her har det blitt drevet butikk, fiskemottak, tranbrenneri, brevhus, og etter andre verdenskrig ble det veiforbindelse til holmen. Likevel ble næringsvirksomheten avviklet i tiden etter. Vi synes derfor det er ekstra hyggelig at det igjen kan bli yrende liv på Døscherholmen, med ny flott bebyggelse!
Det har vært stor interesse for dette unike prosjektet, og grunnarbeidet er nå godt i gang. Med fastpris er det ingen hektiske budrunder, og ingen prisstigning etter kontrakt er skrevet. Ta kontakt med oss i dag for sikre deg muligheten til å nyte livet ved sjøen!
Alle bilder/tegninger er illustrasjoner, vi tar forbehold om endringer

Sjøen ligger like utenfor din fritidsbolig på Døscherholmen, med alle muligheter for fiske, båtturer, bading osv.

Mange flotte turområder i Øygarden, som her ved Bekhilderen i Telavåg

Hva med å booke en tur i Havblikk Fjordsauna? Bli hentet på holmen for et badstucruise på fjorden. Finn ro og nyt den vakre utsikten mens badstuen flyter av gårde og ovnen knitrer og damper.
Dette er en helt herlig aktivitet å gjøre sammen med gode venner, kollegaer eller familie, enten dere har noe spesielt å feire eller bare vil se Øygarden fra den beste siden, nemlig sjøsiden, og putre rundt mellom øyene.

Fjell festning er et populært turområde

Straume og Sotra Kystby er en liten kjøretur unna, og her finner vi kino, restauranter og shopping!


Hedlemyra Fjell
