Hopp til hovedinnhold
1 / 0

Lekker vertikaldelt tomannsbolig på ett plan

Solblomkroken 44 2150 Årnes
Pris fra
4 390 000 kr
June Andersen
Salgskonsulent
Prosjektet bygges av

Fenstad Bygg AS

Fenstad Bygg har utført byggeoppdrag siden deres start i 1969. Vårt virkeområde er hovedsakelig på Øvre Romerike, med kommunene Ullensaker, Nes, Eidsvoll, Sørum, Nannestad, Hurdal og Gjerdrum som primærområde.

Gå til forhandlersiden

Nøkkelinfo

Soverom

2

Eierform

Eier (Selveier)

Boligtype

Tomannsbolig

Gårdsnr.

175

Bruksnr.

545

Beskrivelse

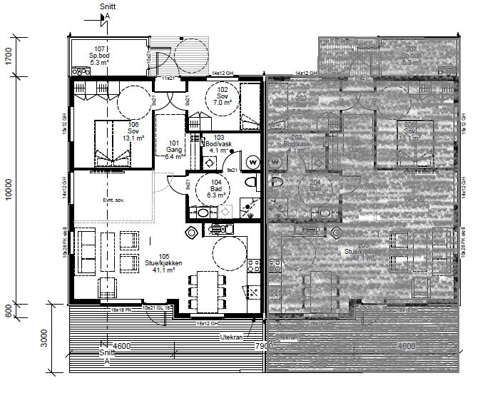
Lekker, vertikaldelt tomannsbolig på ett plan med flott beliggenhet i rolige omgivelser nær marka. Boligen har en meget god romfølelse med store, åpne rom og ca. 3,6 meter under taket på det høyeste i stue-/kjøkkendel. Stuen har moderne peisovn og utgang til solrik terrasse på ca. 24 kvm. Stilrent kjøkken fra Sigdal med integrerte hvitevarer. Boligene oppføres med solid håndverk og har en god planløsning. Mulighet for garasje dersom man ønsker det. TEK 17 standard og balansert ventilasjon. Spar strøm og uforutsette kostnader med et nytt energieffektivt hus som ikke trenger vedlikehold på mange år!

NB! Bildene i denne annonsen er tatt fra et tilsvarende prosjekt, så overflater/farger kan avvike noe. Gjeldende beskrivelse som angitt nedenfor:

STANDARD / INNHOLD

Gang:
Romslig entré/gang med god plass til garderobeskap. Malte gipsplater farge Space 1704-Y19R på vegg og flis Antica 30x60 Black matt med varmekabel i gulv, legges frem til enden av garderobenisjen.

Stue/Kjøkken:
Åpen løsning mellom stue og kjøkken med peisovn og utgang til stor, solrik hage med treterrasse på ca. 24 kvm. God plass til spisestue. Meget lyst og luftig med ca. 3,6 meter under taket og store vindusflater. Moderne kjøkkeninnredning fra Sigdal type Scala med hvite, profilerte fronter og laminat benk- & kitchenboardeplate. Integrerte hvitevarer bestående av kombiskap, koketopp, stekeovn og oppvaskmaskin. Malte gipsplater farge Space 1704-Y19R på alle vegger og Storhaug 1-stavs parkett på gulv.

Soverom:
To gode soverom, begge med frittstående garderobeskap. Mulighet for å etablere et ekstra soverom i deler av stuen, ved ønske/behov. Termostatovner med nattsenkefunksjon monteres i soverommene. Malte gipsplater farge Space 1704-Y19R på alle vegger og Storhaug 1-stavs parkett på gulv.

Bad:
Pent, tidløst bad utstyrt med innsvingbare dusjdører, vegghengt toalett og grå Dansani 120 cm baderomsinnredning med to skuffer og speilskap med lys fra Bademiljø. Flis Antica 20x40 White matt på vegg. Gulv har Antica 10x10 Black matt mosaikkflis i nedsenk dusjnisje, og Antica 30x30 Black matt på resterende gulvflate . Varmekabel i gulv.

Bod/Vask:
Praktisk bod/vaskerom med 200 l varmtvannsbereder, sikringsskap, rør-i-rør og opplegg for vaskemaskin. Vegger med flis Antica 20x40 White matt og gulvflis type Antica 30x30 Black matt. Varmekabel i gulv.

Sportsbod:
Romslig sportsbod på 5,3 kvm. Her blir Flexit aggregatet plassert. Ubehandlet betong på gulv og med åpent bindings-/takverk.

Parkering:
Det er avsatt plass til fremtidig dobbelgarasje på 36 m2 og ellers parkering på egen gårdsplass. Opsjonspris på garasje som vist på tegning, kr. 400.000,- inkl. søknad, grunn- , mur - og tømrerarbeid.

Tomt:
Eiet tomt 637 m2.

HVORFOR KJØPE NYTT?
Å bygge nytt kan være lønnsomt og et ferdighus kan for mange være selve nøkkelen til å komme seg inn på boligmarkedet. Med fastpris slipper man prisdrivende budrunder og dyre byggelån. Øvrige fordeler:
- Du betaler kun dokumentavgift av tomteverdien og fast pris for
nøkkelferdig hus.
- En ny bolig har ikke behov for oppussing i nærmeste fremtid, slik at du kan bruke fritiden på noe annet enn oppussing. Tid = Penger.
- Lave driftskostnader; alt er nytt og boligen vil være "selvgående" i mange år fremover.
- Meget energieffektive hus som gir betraktelig billigere strømutgifter!
- Strenge krav til inneklima og energiforbruk gir optimale luft, varme og klimaforhold i boligen. Høy teknisk standard.
- Lovfestet garanti i hele 5 år etter overtakelsen.

BELIGGENHET
Om Fjellfoten:
På idylliske Fjellfoten i Årnes har vi et nytt byggefelt under oppføring, hvor de første boligene sto ferdig høsten 2016. Byggetrinn I er allerede fullført og består av tjuefem eneboliger, fem tomannsboliger og ni kjedede eneboliger. Byggetrinn II er nå under oppføring og her er det planlagt tjueåtte eneboliger, tretten tomannsboliger og seksten kjedede eneboliger.

Fjellfoten er et veletablert og barnevennlig boligområde med barnehage og nærmiljøsenter inne på selve feltet, samt bussholdeplass rett utenfor. Flott beliggenhet med kort avstand til marka, store lekeplasser/gressbaner, flere barnehager og skoler i alle trinn. Fjellfoten barneskole og idrettsanlegg ligger ca. 600 meter fra feltet,- i tillegg til Årnes barneskole, Runni ungdomsskole og Nes videregående skole som alle ligger ca. 10 minutters kjøretur unna. Området ligger ca. 5 km sør for Årnes sentrum, som er kommunesenteret i Nes. Her finner du bl.a. kjøpesenter, kafeér, restauranter, kino, rådhus og kulturhus, ishall og bryggeanlegg. Umiddelbar nærhet til bussholdeplass rett utenfor feltet og god kommunikasjon videre fra Årnes via både buss, tog og flybuss. Her går det direktelinjer inn til Oslo.

Om Årnes:
Med over 5.000 innbyggere er Årnes det største tettstedet i Nes. Her finnes et variert utvalg fine butikker og gode servicetilbud. Med umiddelbar nærhet til vakre Glomma i vest og store friluftsområder i øst, innbyr området også til båtliv, bading, jakt og fiske. De store skogsområdene inneholder et godt nettverk av merkede turstier, både sommer- og vinterløyper, i tillegg til sykkelveier. Flere steder er det opparbeidede friluftsområder der det er tilrettelagt med gapahuk, bålplasser eller fiskebrygger.

I Nes er det registrert over 50 idrettslag som tilbyr idretter som fotball, håndball, basketball, innebandy, friidrett, ski, sykkel, kampsport, golf, dans og hestesport.

I 2017 sto den flotte svømmehallen ferdig til stor glede for store og små,- med både vannsklie, fire forskjellige bassenger og koselig kafé. Nes kulturhus er et populært samlingssted med topp moderne kino, konsert- og teaterscene. Det gamle Pakkhuset ved jernbanen samler musikkinteresserte i alle aldre og tilbyr fine øvingslokaler, lydstudioer og gode kurstilbud. I regi av Nes Blues Club arrangeres det også mange flotte konserter her.

Gode tur-, trenings- og rehabiliteringsmuligheter sommer som vinter, med nærhet til bl.a. Veslesjøen, Sagstusjøen og områdene rundt Dragsjøen.

Offentlig kommunikasjon:
Godt kollektivtilbud med to bussholdeplasser i tilknytning til feltet. Togforbindelse til Oslo med avgang fra Årnes stasjon hver time. Med bil tar det ca. 35 minutter til Oslo lufthavn og omtrent 50 minutter til Oslo S.

ANNET
Offentlige/Kommunale avgifter:
De kommunale avgiftene omfatter vann-, avløp- og renovasjonsgebyr. Det gjøres oppmerksom på at det kan forekomme variasjon i avgiftene som følge av forbruk og endringer av gebyr/avgift.

Vei/Vann/Avløp:
Eiendommen har adkomst via kommunal vei og er tilknyttet Årnes vannverk A/L.

Tv og Internett:
Telenor er leverandør av kabel-tv og bredbånd.

Velforening/Vedtekter:
Kjøper plikter å være medlem i Velforening eller lignende som
etter hvert vil bli opprettet for boligfeltet. Velforeningen skal ivareta drift og vedlikehold av fellesarealene utenfor sameiets tomt. Kjøper plikter å rette seg etter velforeningens vedtak og vedtekter, herunder delta med en forholdsmessig andel av nødvendige driftsutgifter m.v.

Ferdigattest/Midlertidig brukstillatelse:
Ferdigattest skal foreligge før innflytning.

Oppgjør:
Det innbetales 10 % ved kontrakt. Rest kjøpesum + omk. betales innen overtakelse.

Kjøpesum, fastpris Kr. 4.390.000,-
+ Dok. avg. (2,5% av tomteverdien) Kr. 20.750,-
+ Tgl. pant kr. 545,-
+ Tgl. skjøte kr. 545,-
+ Panteattest kr. 260,-
+ Tilknytningsgebyr vann & avløp Kr. 35.000,-

Oppgjøret innbetales i sin helhet til ansvarlig meglerforetak oppgitt i kontrakt.

Eier:
Øvre Romerike Eiendom A/S

Kontaktperson:
June Andersen
Salgskonsulent
Mob: 916 51 774

Start ditt drømmeprosjekt

Meld interesse

Din kontaktinformasjon

Din melding

Ved å sende inn skjema opprettes det en brukerprofil på mesterhus.no, og dine opplysninger lagres i vår digitale løsning. Utfyllende informasjon om behandlingen og hvordan du kan slette din profil finner du i vår personvernerklæring. Mesterhus vil sende deg nyhetsbrev basert på ditt kundeforhold hos oss. Dersom du ønsker å reservere deg mot nyhetsbrev, gjør du det enkelt ved å krysse av nedenfor.