Hopp til hovedinnhold
1 / 0

Nye eneboliger under oppføring med god planløsning, mulighet for 5 soverom - Attraktiv beliggenhet!

Ulebakkveien 8 3180 Nykirke
Pris fra
6 490 000 kr
Joachim Røren
Kunderådgiver
Prosjektet bygges av

Mesterhus Horten-Holmestrand-Sande AS

Mesterhus Horten-Holmestrand-Sande AS utfører alle typer rehabilitering, fra totalrenovering til mindre tiltak som gjør boligen din mer moderne og energieffektiv. Vi kan bistå deg når du har behov for et større og/eller mer funksjonelt og moderne hus, enten vi snakker påbygg, tilbygg eller en enklere oppgradering/modernisering.

Gå til forhandlersiden

Nøkkelinfo

Soverom

5

Eierform

Eier (Selveier)

Boligtype

Enebolig

Gårdsnr.

73

Bruksnr.

188

Beskrivelse

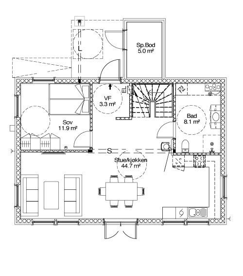
Fire nye moderne eneboliger på solrike tomter. Gjennomgående god standard og planløsning med mulighet for 5 soverom, bad, bad / vaskerom, loftstue, åpen stue kjøkken løsning og sportsbod.

Boligene blir liggende vestvendt og har fantastisk solforhold. Tomten ligger landlig og flott inne i et nytt boligfelt.

Det er umiddelbar nærhet til Nykirke sentrum med dagligvareforretninger, diverse forretninger, servicetilbud og bensinstasjon.

Attraktive tomter med sentral beliggenhet og kort vei til E-18, Horten, Tønsberg og Holmestrand. Tomtene på Klokkerskogen ligger familievennlige og landlig til, som en utvidelse av boligfeltet Klokkeråsen. Her blir det plass til ca. 100 boliger i ulike størrelser. Første deltrinn består av 11 enebolig tomter.

Bebyggelsen er vinklet slik at det skapes lune og solrike oppholdsarealer mellom byggene og koselig preg på området. Det skal opparbeides gangveier mellom oppholdsarealene og lekearealer, slik at man kan følge disse til fots. Her kan barna leke i trygge omgivelser med lite trafikk. Sommer, som vinter er det fine turstier og skiløyper rett utenfor døra.

På Klokkerskogen er veien til Fagerheim skole og barnehage kort. Nykirke idrettsplass har flotte utendørs baner og aktivitets hall. Nærmeste dagligvarehandel er Spar under 1 km nord for byggefeltet. Horten sentrum ligger 6 km fra Nykirke og har alle servicetilbud, et sjarmerende handelssentrum med gågater, torg, hyggelige kafeer og aktivt uteliv.

Horten kommune er en hyggelig havneby med ca. 20 000 innbyggere og har mye å by på, både av maritim historie og moderne byliv. Hortensskogen, fyllinga og den
idylliske kanalen byr på fredfull vandring langs sjøen. Her er flere badestrender, med bl.a. Rørestrand camping som er kåret til Norges beste badestrand. Horten har en rik
historie og masse kultur. Borrevannet eller Løvøya innbyr til fisking.

Buss:
Nykirke har god kollektivdekning. Rute 02 (Tjøme/Hvasser - Tønsberg - Horten - Holmestrand) går en gang hver halvtime fra Fv 670. Like ved Nykirke kirke ligger bussholdeplass for lokalbusser og skolebuss.

Tog:
Skoppum jernbanestasjon ligger kun 5 km fra boligfeltet og toget tar deg raskt i retning Tønsberg, Drammen/Oslo.

Bil:
Med bil er det kun 3 minutter til Kopstadkrysset og påkjøring til E 18, som tar deg raskt både nord- og sørover. 20 min. til Tønsberg, 28 min. til Torp flyplass/Sandefjord, 12 min. til Horten og Holmestrand og 38 min. til Drammen.

Hvorfor kjøpe nytt?
- Boligen er i forskriftsmessig stand med mange års reklamasjonsfrist.
- Energiøkonomiske og klimavennlige løsninger.
- Innflyttingsklar uten tanke på å måtte pusse opp først.
- Det er svært lite vedlikeholdskostnader i nær framtid.

Bygging igangsatt! Ta kontakt slik at du kan tilpasse boligen

Leveranse

Innvendige overflater

Dører:

Innvendige dører leveres som hvitmalte Base1 tett dører fra Bygg1. Karmer med dempelist og utforinger leveres hvitmalt.
Ytterdør Hovedby hvit med glass fra Bygg1.

Vindu:

Det leveres vinduer med 0,90 u-verdi fra Nordan. Vinduene er barne- og tyverisikre. Vindu, karm og utforinger leveres hvitmalt. Evt. sprosser leveres, se fasadetegning i 1:100, som utenpåliggende klipssprosser.

Vegger / tak og himling:

På veggene i alle tørre rom leveres 13mm gipsplater grunnet, sparklet og malt 2 strøk hvit. I Himling leveres det 13mm gipsplater grunnet, sparklet og malt 2 strøk hvit.

Gulv:

Det er beregnet Pergo Trondheim 1-stav laminatgulv
på alle gulv unntatt bad/vaskerom, og hall. Trondheims lange planker gir gulvet ditt et klassisk, eksklusivt treuttrykk som aldri går av moten. Med fas på alle fire kanter og dypere, mer naturlige strukturer ser og føles Trondheim laminatgulv ut som ekte treverk.

Listverk:

Til alle boligrom leveres fabrikkmalte hvite lister rundt dører, vinduer og langs tak. I Ulebakkveien 8 leveres gerikt i utførelsen 12 x 058 rund kant og i taket 21x45 enkel skyggelist. Fotlister som 14x45 lakkert eik rund nese. Sparkling og maling av spikerhull i lister må påregnes.

Trapper:

Styntrappa Fauna med heltre eik trinn parkettmønster fra Hagen leverer kvalitetstrapper til våre boliger. Trapp leveres med forskriftsmessig rekkverk eller håndrekke på begge sider.

Utvendig panel:

Det leveres liggende 19 x 148 mm. d.fals kledning grunnet og et mellomstrøk til denne boligen. Det anbefales strøk nr. 3 innen 2 år.

Tak:

Det leveres Skarpnes dobbeltkrum edel sort til denne boligen.

Kjøkken, bad, vaskerom

Kjøkken:

Sigdal leverer kjøkkeninnredning til våre boliger - du står fritt til å velge det kjøkkenet du liker best til en verdi av kr 140 000 veil. pris ferdig montert av Sigdal kjøkken.

Bad:

På veggene i bad 2 etg. leveres med fliser standard montert valgfritt utvalg fra Mesterhus Eneboligstandard levert av Modena Restec. Bad/Vaskerom 1 etg. leveres med Trespo våtromsplate F24 3091 HG White. På gulv bad/vaskerom og entre leveres fliser standard montert valgfritt fra Mesterhus enebolig standard.. Utstyr leveres i henhold til 1:100-tegninger for den enkelte bolig, som for eksempel Linn bad Hilde baderoms innredning 120cm, veggmonterte toaletter, ettgreps blandebatteri til servanter, dusjutstyr. Ta kontakt for komplett spek.

Elektrisk, ventilasjon, oppvarming

Elektrisk:

Det legges opp skjult elektrisk anlegg med brytere og kontakter i hvit utførelse. Automatsikringer, hovedsikring og målere i eget sikringsskap. Antall punkter leveres i henhold til den gjeldende standarden NEK 400 - 2014 og plassering fastsettes sammen med elektroentreprenør.

Telefon / tv / bredbånd:

Det leveres opplegg for telefon, bredbånd og TV. Kjøper står selv for bestilling og tilkobling.

Ventilasjon:

Det leveres balansert ventilasjonsanlegg av typen VTR 300. Frisk, forvarmet og renset luft tilføres oppholdsrommene. Anlegget skal være i kontinuerlig drift og sørger for et sunt innemiljø.

Oppvarming:

Det leveres gulvvarme i alle rom i husets grunnflate og bad 2 etg. eksl soverom i 1 etg. Det leveres peisovn Scan 65-2 med glassplate på gulv med stålpipe til denne boligen. Oppvarming utover dette bestemmes av tiltakshaver og kommer i tillegg.

Isolasjon:

Yttervegger i boligen er bygget opp av 198 mm bindingsverk. Mellomrommet mellom stolpene fylles med 200 mm mineralull. Yttertak isoleres med 400 mm mineralull og innervegger mellom boligrom isoleres med 50/100 mm mineralull.

Generelle forhold

Dette prospektet er ment som en orientering om byggeprosjektet og er ikke bindende for den detaljerte utformingen av bebyggelsen. Alle opplysninger er derfor gitt med forbehold om at utbygger kan foreta mindre endringer hvis dette skulle vise seg nødvendig eller ønskelig. Illustrasjoner og plantegninger som er benyttet i prospektet kan avvike fra virkelig bygg. Tomten vil bli fradelt og endelig tomtestørrelse kan avvike ift illustrasjoner. 1:100-tegninger og prosjektets beskrivelse går foran dette prospektet der det måtte være avvik.

Adkomst

Følg Falkenstensveien fra Horten til Nykirke og sving til venstre inn Hellanveien. Fortsett inn på Skaaneveien 200 meter og hold til høyre inn på Kirkesvingen. Etter 200 meter sving til høyre inn Sletterødveien og deretter inn på Klokkeråsen. Klokkerskogen ligger innerst i byggefelter. Se tomteskilt.

Start ditt drømmeprosjekt

Meld interesse

Din kontaktinformasjon

Din melding

Ved å sende inn skjema opprettes det en brukerprofil på mesterhus.no, og dine opplysninger lagres i vår digitale løsning. Utfyllende informasjon om behandlingen og hvordan du kan slette din profil finner du i vår personvernerklæring. Mesterhus vil sende deg nyhetsbrev basert på ditt kundeforhold hos oss. Dersom du ønsker å reservere deg mot nyhetsbrev, gjør du det enkelt ved å krysse av nedenfor.