Hopp til hovedinnhold
1 / 0

Herskapelig enebolig i to fulle plan. Meget romslig og innholdsrik. Barnevennlig boligområde.

Slettumsvingen 3 2170 Fenstad
Pris fra
6 200 000 kr
June Andersen
Salgskonsulent
Prosjektet bygges av

Fenstad Bygg AS

Fenstad Bygg har utført byggeoppdrag siden deres start i 1969. Vårt virkeområde er hovedsakelig på Øvre Romerike, med kommunene Ullensaker, Nes, Eidsvoll, Sørum, Nannestad, Hurdal og Gjerdrum som primærområde.

Gå til forhandlersiden

Nøkkelinfo

Soverom

4

Eierform

Eier (Selveier)

Boligtype

Enebolig

Gårdsnr.

14

Bruksnr.

225

Mesterhus Karita

Klassisk og herskapelig enebolig over to plan, med full takhøyde i begge etasjer. Mesterhus Karita - vår mest populære hustype gjennom flere år!

Boligen har store, fine rom og en meget god planløsning. Romslig hall med doble glassdører som fører inn til lys og trivelig vinkelstue. Stuen er utstyrt med moderne peis, har god plass til spisestue og via doble glassdører kommer man videre ut til solrik hage. Kjøkkenet har takhøy kjøkkeninnredning og integrerte hvitevarer. Det er totalt 4 soverom i boligen og man kan enkelt etablere et 5 soverom ved behov. Praktisk loftstue med utgang til balkong. Videre er det separat toalettrom og to bad/vaskerom. Godt med bodplass i utvendig sportsbod. TEK 17 standard og balansert ventilasjon. Spar strøm og uforutsette kostnader med et nytt energieffektivt hus som ikke trenger vedlikehold på mange år!

STANDARD / INNHOLD

1. Etasje, Bra: 85,9 kvm.
Hall:
Stor hall med god plass til garderobeskap. Varmekabel i gulv. Sikringsskap plassert på vegg.

Stue:
Meget lys og romslig vinkelstue med moderne peisovn type Visionline BLK 100 og utgang til stor, solrik hage. Åpen løsning med god plass til spisestue. Det er beregnet at man skal kunne etablere et femte soverom i del av stue ved behov.

Kjøkken:
Takhøy, moderne kjøkkeninnredning fra Sigdal type Scala med hvite, profilerte fronter. Laminat benkeplate og kitchenboardplate type Grå Marmor. Hvitevarer bestående av integrert kombiskap, koketopp, stekeovn og oppvaskmaskin medfølger. Avtrekksvifte i kjøkkenskap er medregnet. Benkebeslag i rustfritt stål.

Vask/Tekn.:
Pent, flislagt våtrom leveres med innsvingbare dusjdører 90x90, utslagsvask og dør ut til terreng. Tekniske installasjoner monteres her. Varmekabel i gulv.

Wc:
Fint gjestetoalett med vegghengt toalett, servant og speilskap med lys. Flislagt gulv med varmekabel.

2. Etasje, Bra: 85,9 kvm.
Loftstue:
Praktisk og koselig loftstue med doble dører ut til solrik balkong.

Soverom:
Fire gode soverom, alle med frittstående garderobeskap. Termostatovner med nattsenkefunksjon monteres i alle soverommene.

Bad:
Pent, flislagt bad utstyrt med både dusj og badekar. Vegghengt toalett og Dansani 120 cm baderomsinnredning med to skuffer og speilskap med lys fra Bademiljø. Varmekabel i gulv.

Bod:
Sportsbod på 5,5 kvm. Her blir Flexit aggregatet plassert.

Trapp:
Det leveres en åpen, hvitmalt trapp med spiler.

Overflater:
Veggflater: Huntonit plater og fliser.
Gulvflater: Parkettgulv og fliser.
Himlinger: Takess plater.

Tilvalg:
Erfaringsmessig vet vi at mange ønsker å sette sitt personlige preg på sin nye bolig og vi har derfor utarbeidet et avklaringsskjema med våre underleverandører. Kjøper kan da få mulighet til å gjøre noen valg i farger og overflater utover angitt standardleveranse, avhengig av hvor langt vi har kommet i byggeprosessen.

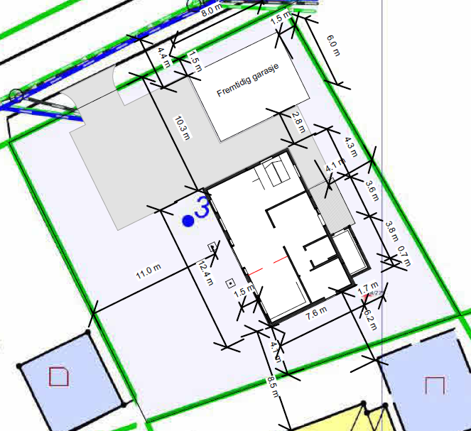
Tomt:
Huset blir oppført på solrik tomt på ca. 699 kvm. Tomten leveres med gruset innkjøring og gårdsplass, samt avsatt plass til fremtidig garasje. Resterende tomt og fellesområde leveres opparbeidet med stedlige masser. Det leveres treplatting ved inngangsparti. Matjord og tilsåing av gress er ikke medregnet.

PARKERING:
Det er avsatt plass til dobbelgarasje og det er lagt trekkerør for strøm ut til garasje. Kjøper må selv søke kommunen og bekoste ønsket garasje. Biloppstillingsplasser på egen tomt.

HVORFOR BYGGE NYTT?
Å bygge nytt kan være lønnsomt og et ferdighus kan for mange være selve nøkkelen til å komme seg inn på eneboligmarkedet.
Øvrige fordeler:
- Lave omkostninger - Du betaler kun dokumentavgift av tomteverdien og fast pris for nøkkelferdig hus.
- En ny bolig har ikke behov for oppussing i nærmeste fremtid, slik at du kan bruke fritiden på noe annet enn oppussing. Tid = Penger.
- Lave driftskostnader; alt er nytt og boligen vil være "selvgående" i mange år fremover.
- Meget energieffektive hus som gir betraktelig billigere strømutgifter!
- Strenge krav til inneklima og energiforbruk gir optimale luft, varme og klimaforhold i boligen. Høy teknisk standard.
- Lovfestet garanti i hele 5 år etter overtakelsen.

BELIGGENHET
Om Grindermåsan:
Grindermåsan er et meget barnevennlig boligfelt, med skjermet
og fin beliggenhet i Fenstad. Lite trafikk og utenfor alle støyområder. Boligfeltet ligger i umiddelbar nærhet til butikk med post, bussholdeplass, barnehage, skole, samt flere fritidsaktiviteter som bl.a. fotball og ski.

Om Fenstad:
Fenstad ligger idyllisk til i nordre del av Nes Kommune i Akershus,
øst for elven Vorma. Stedet er preget av vakker natur og rik tilgang på friluftsaktiviteter. Det er under 2 km til Fenstad barneskole. Ungdomsskole og videregående skole ligger henholdsvis i Vormsund ( 9 km ) og på Årnes ( 14 km ).

Om Nes:
Nes kommunes ca 25.000 innbyggere har hele 641 kvadratkilometer å boltre seg på. 800 gårdsbruk bidrar til at Nes faktisk er landets største kornkommune. Skoletilbudet er godt på de 8 barneskolene, 2 ungdomsskolene og de 2 store videregående skolene som finnes i kommunen. I 2021 ble også Romerike International School etablert som en privatskole for 1 til 10 klasse.

Med sin nærhet til Oslo by, Oslo Lufthavn Gardermoen og med kort vei til Charlottenberg Handelspark, bor man både sentralt og idyllisk til i Nes,- som anses å være en trygg bo- og opplevelseskommune som har mye å by på både sommer og vinter.

Om sommeren minner bryggeområdene langs Glomma og Vorma om vakre sørlandsidyller. Flotte tur-, trenings- og rekreasjonsområder med utallige turstier og hele 168 sjøer og vann. For golfentusiaster er Rommen Golfpark (18 hull) en meget populær destinasjon. Unike skimuligheter hele vinteren med flotte, preparerte løypetraseer rundt om i kommunens store og uberørte naturområder.

Foruten den lokale nærbutikken er det kort vei til kjøpesenter både på Vormsund og i Årnes,- hvor man også finner legesenter, spa/velvære, svømmehall, ridesenter, ishall, kino/kulturhus, kaféer, kunstforening og ikke minst en av landets best bevarte kirkeruiner fra 1100-tallet.

Nes kommune står foran en positiv utvikling i en tid med kraftig vekst i folketallet. Mange nye innbyggere og etablerere skal ytes gode tjenester. Derfor arbeider Nes kommune kontinuerlig med å kanalisere sine ressurser inn mot direkte tjenesteproduksjon, uten tungvinte byråkratiske løsninger.

Se www.nes-ak.kommune.no for mer informasjon.

ANNET
Offentlige/Kommunale avgifter:
De kommunale avgiftene omfatter vann-, avløp- og renovasjonsgebyr. Det gjøres oppmerksom på at det kan forekomme variasjon i avgiftene som følge av forbruk og endringer av gebyr/avgift.

Vei/Vann/Avløp:
Eiendommen har adkomst via kommunal vei og er tilknyttet Årnes vannverk A/L.

Tv og Internett:
Viken fiber / Altibox

Velforening/Vedtekter:
Kjøper plikter å være medlem i Velforening eller lignende som
etter hvert vil bli opprettet for boligfeltet. Velforeningen skal ivareta drift og vedlikehold av fellesarealene utenfor sameiets tomt. Kjøper plikter å rette seg etter velforeningens vedtak og vedtekter, herunder delta med en forholdsmessig andel av nødvendige driftsutgifter m.v.

Ferdigattest/Midlertidig brukstillatelse:
Skal foreligge før innflytting.

Oppgjør:
Kjøpesum + omkostninger skal betales i sin helhet innen overtakelse. Ingen forhåndsbetaling eller dyre byggelån kreves!

Kjøpesum, fastpris Kr. 6.200.000,-
+ Dok. avg. (kun beregnet av tomteverdien) Kr. 17.650,-
+ Tgl. pant kr. 545,-
+ Tgl. skjøte kr. 545,-
+ Panteattest kr. 260,-
+ Tilknytngebyr vann & avløp Kr. 35.000,-

Oppgjøret innbetales i sin helhet til ansvarlig meglerforetak oppgitt i kontrakt.

Start ditt drømmeprosjekt

Meld interesse

Din kontaktinformasjon

Din melding

Ved å sende inn skjema opprettes det en brukerprofil på mesterhus.no, og dine opplysninger lagres i vår digitale løsning. Utfyllende informasjon om behandlingen og hvordan du kan slette din profil finner du i vår personvernerklæring. Mesterhus vil sende deg nyhetsbrev basert på ditt kundeforhold hos oss. Dersom du ønsker å reservere deg mot nyhetsbrev, gjør du det enkelt ved å krysse av nedenfor.