Hopp til hovedinnhold
1 / 1

KVANT - Enebolig med alt på en smart flate - 3 sov - Carport - Sentralt på Skreia - Flott utsikt

Høgdavegen 36 2848 Skreia
Pris fra
3 709 000 kr
Bjørn Åge Scheide
Salg- og markedssjef
Prosjektet bygges av

Mesterhus Innlandet

Rotstigen AS er din lokale totalentreprenør på Gjøvik, med solid erfaring i nybygg og rehabilitering helt siden 1946. Som en del av Mesterhus Innlandet dekker vi markedsområdene Gjøvik, Toten, Land, Hamar, Ringsaker, Stange og Elverum. Velg oss for kvalitet og trygghet i ditt byggeprosjekt. – Det blir som avtalt.

Gå til forhandlersiden

Nøkkelinfo

Soverom

3

Eierform

Selveier

Boligtype

Enebolig

Gårdsnr.

56

Bruksnr.

284

Vælkømmin hem'att!

I landlige og barnevennlige omgivelser rett ovenfor Skreia sentrum, planlegger vi å bygge den smarte eneboligen, Mesterhus KVANT.

Vi gleder oss til å bygge flere nye drømmehus her på Fossen-feltet, og sammen med våre arkitekter skreddersyr vi deres nye hjem, enten dere vil ha en stor enebolig eller en KVANT liten enebolig på 69 kvm. - Vi bygger for alle livets faser.

  • Her følger et priseksempel på en standard KVANT 3.0 med carport.

PS: Pris på tomt er medtatt i oppgitt salgspris.

Vi vet at det er vanskelig å komme seg inn på boligmarkedet, og at de fleste ikke har tid eller krefter til et evigvarende oppussingsprosjekt.
Så til deg som ønsker deg din egen nye enebolig; Her er den smarte og kostnadseffektive KVANT - En flott inngangsbillett til boligmarkedet!

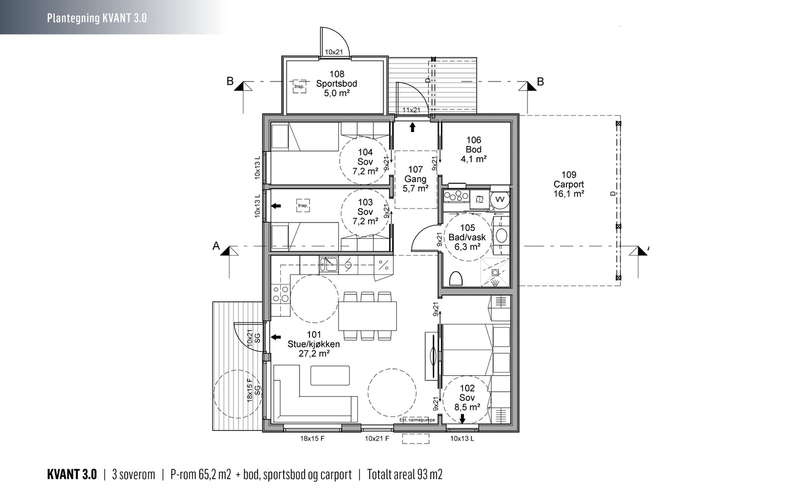
Her har vi planlagt en KVANT 3.0 med 3 soverom, innvendig bod, sportsbod og carport. En smart og areal-effektiv enebolig, med alt du trenger på ett plan.
Boligens p-rom: 65 kvm

Her det det åpen stue-/ kjøkkenløsning med flere vindusflater som slipper lyset inn. Fra terrassen, er det veien er kort for å hente forfriskninger.
Bad med plass til vaskemaskinen og flislagt gang.
Bilen parkerer du i carporten rett rundt hjørnet for inngangsdøren. KVANT 3.0 har også en innvendig bod, samt en praktisk sportsbod med plass til lagring av julepynt, ski og sykler.

  • KVANT er kun et forslag til bolig som kan passe fint inn på tomten.


Her er det rom for tilpasninger, eller vi kan begynne på nytt. Sammen med våre arkitekter skreddersyr vi nemlig din boligdrøm!
Vi bygger akkurat det huset du vil ha, skreddersydd etter dine ønsker, behov og kostnadsramme.
En av fordelene med å bygge nytt er jo nettopp å få det du trenger!

  • Ring gjerne Bjørn Åge på 416 60 066 for en hyggelig boligprat eller tomtevisning.


Huskatalogen vår bestiller du enkelt ved å klikke på linken ute på siden.

  • Alle bilder, illustrasjoner og tegninger som er vist i annonsen er et eksempel på hvordan fasade og planløsning kan være.

Foto i annonsen er tatt av en kundetilpasset versjon av Kvant 3.0 som er bygd av oss i Mesterhus Innlandet.

  • Reguleringsbestemmelser på takvinkel

Ved bygging av KVANT på Fossen-feltet, må takvinkel på pulttaket være 10 grader. Illustrasjonene vår viser 8 grader.

  • Går du med en husdrøm?

Vi i Mesterhus Innlandet bistår deg hele veien fra plantegning til ferdig drømmehus, og har levert kvalitet innen nybygg og rehabilitering siden 1946!
Har du klart for deg hvordan drømmeboligen din ser ut? Vi bygger akkurat det huset du vil ha, og husk at alle Mesterhus kan skreddersys etter dine behov!
En av fordelene med å få bygget noe eget er jo nettopp at du kan få det nøyaktig slik du vil, både med tanke på funksjonalitet og utseende.
Mesterhus har mange arkitekttegnede husmodeller, men det er svært sjeldent at husene ender opp akkurat slik de er avbildet i katalogen. Byggeprosessen blir formet av menneskene som skal bo der.
Vi hjelper deg med å identifisere hvilke behov den nye boligen din skal tilfredsstille. Start gjerne med den flotte huskatalogen vår som en kilde til inspirasjon, og kom med egne ideer og tanker underveis.
Gjennom oss får du kreativ frihet, samtidig som det aldri rokkes ved tryggheten.

Vi bygger ikke bare hus – Vi skaper hjem! – og det blir som avtalt.

  • Fordeler med å bygge nytt!


Vurderer du å bygge hus, men trenger noen argumenter for å overbevise din kjære om at det er en god idé? Vi har samlet de beste grunnene til hvorfor det lønner seg å bygge hus!
1. Tilpasset dine behov
2. Ingen oppussing på mange år
3. Bygg for framtiden
4. Lavere oppvarmingsutgifter
5. Godt inneklima
6. Du får et nytt hjem som er helt unikt
7. Ingen stressende og fordyrende budrunder
8. Ingen har bodd der før deg
9. Mange valgmuligheter

  • Tomt

739 kvm. Eiet tomt.
Tomten er byggeklar og har bygge-klausul med oss i Mesterhus Innlandet og Rotstigen.
Høgdavegen 36 selges for kr 690.000,- + omkostninger (kr 18 600,-). Tomten overdras ifra Østre Toten Eiendomsselskap. Kjøper bærer kostnader til oppgjørsadvokat.
Tomt + omkostninger er med i oppgitt totalpris.
Kommunale avgifter, byggestrøm og gravearbeider er ikke medtatt.

  • Reguleringsbestemmelser

Eiendommen er regulert til boligformål i reguleringsplan for Fossen 3 Nord plan-ID 20190001, vedtatt 30.04.19, revidert 14.05.19

  • Vei/ vann/ avløp

Boligen vil bli tilknyttet offentlig vei, vann og avløp.

  • Byggherre

Mesterhus Innlandet i samarbeid med Rotstigen.


Det tas forbehold om eventuelle skrivefeil i annonse og vedlegg.

Indeksreguleres iht. SSB. Byggjekostnadsindeks for Einebustader av tre, i alt. pr. januar 2026.

Ta kontakt med oss for leveransebeskrivelse.

  • Adkomst

Fra 33 / Totenvegen: Sving høyre inn på Skolevegen, kjør 350 m. Sving høyre inn på Fossenvegen, kjør 31 m. Sving venstre inn på Parkvegen, kjør 7 m. Sving høyre inn på Fossenvegen, kjør 108 m. Sving høyre inn på Høgdavegen, kjør 250 m til du kommer til svingen. Midt i svingen tar du opp til høyre. Tomten er skiltet ligger på venstre side.

  • Vælkømmin tæl Skreia!

Skreia er et lite og trivelig tettsted med et bredt spekter av tjenester i hverdagen. Her finner du ungdomsskole, dagligvarebutikker, idrettshall, kulturhus og flere lokale virksomheter – alt innen gangavstand fra Fossen-feltet. Skreia sentrum har i tillegg kaféer, butikker, servicetilbud og et aktivt idrettsmiljø med både flerbrukshall og kunstgressbane.
Knappe 500 meter fra inngangsdøra ligger nærmeste bussholdeplass, med gode forbindelser til Gjøvik og resten av Toten. Lena ligger bare 10 minutter unna og tilbyr blant annet kommunesenter og videregående skole. Reisetiden til Gjøvik er rundt 26 minutter, og Gardermoen nås på omtrent én time med bil.
Skreia omtales ofte som “porten til Totenåsen” på grunn av nærheten til friluftsområder og et variert turterreng. Her får du korte avstander til både nærturer, Totenåsen og Mjøsa – med alt fra stier og skiløyper til bade- og båtmuligheter.
I tillegg ligger stedet vakkert til i kulturlandskapet, med rolige omgivelser og et lokalmiljø som har både industri, handel og gode fritidstilbud. KIMs-fabrikken og flere solide håndverks? og servicebedrifter holder til i sentrum og bidrar til et aktivt lokalsamfunn.
Skreia passer for deg som vil bo naturnært og lettstelt, men samtidig ha kort vei til skole, fritidstilbud og daglige gjøremål.
Kilde: Wikipedia / Mesterhus Innlandet

Start ditt drømmeprosjekt

Meld interesse

Din kontaktinformasjon

Din melding

Ved å sende inn skjema opprettes det en brukerprofil på mesterhus.no, og dine opplysninger lagres i vår digitale løsning. Utfyllende informasjon om behandlingen og hvordan du kan slette din profil finner du i vår personvernerklæring. Mesterhus vil sende deg nyhetsbrev basert på ditt kundeforhold hos oss. Dersom du ønsker å reservere deg mot nyhetsbrev, gjør du det enkelt ved å krysse av nedenfor.