Hopp til hovedinnhold
1 / 0

Helt ny, frittliggende enebolig over 2 plan i fredfull blindgate med nydelig utsikt og sen kveldssol. Flytt rett inn!

Lefsrødtoppen 15 3174 Revetal
Pris fra
9 940 000 kr
Prosjektet bygges av

Mesterhus Tønsberg

Mesterhus Tønsberg er ditt naturlige valg når du skal bygge eller rehabilitere. Siden 1993 har våre fem solide byggmestre levert boliger vi er stolte av i hele Vestfold. Kom innom vårt salgskontor på Kilen i Tønsberg, så tegner og bygger vi drømmehuset ditt.

Gå til forhandlersiden

Nøkkelinfo

Soverom

4

Eierform

Eier (Selveier)

Boligtype

Enebolig

Gårdsnr.

527

Bruksnr.

39

Om eiendommen:

Din drømmebolig i Lefsrødåsen? Nå står boligen i
Lefsrødtoppen 15 klar til innflytning. Med sin fleksible planløsning er dette en ypperlig bolig både for deg som ser etter alle hovedfunksjoner i 1. etasje eller som en romslig familiebolig med 4 soverom, 2 stuer og 2 bad fordelt på 2 plan. Høyt og fritt beliggende i en rolig blindvei med sen kveldssol og nydelig utsikt.

Boligen går over 2 fulle plan og har gjennomtenkte og optimaliserte løsninger med hensyn til terreng, beliggenhet og himmelretninger. Boligen innehar en gjennomgående høy standard med materialer og innredninger av høy kvalitet, levert av kjente leverandører.

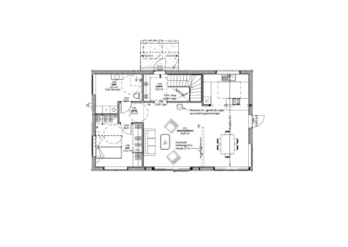
Boligen inneholder bl.a. 1. etasje med en lekker flislagt (60x60) entré/trapperom med praktisk garderobeskap og varmekabler i gulv. Videre har du en meget romslig stue/spisestue med peisovn og kjøkken i åpen løsning. Stuen er delt med praktisk skillevegg som gjør at du både får en naturlig plass til sofaseksjonen og spisestuen. Stuen har rikelig med vindusflater som både slipper inn godt med naturlig lys og fremhever den nydelige utsikten! Fra stuen har du også utgang til en deilig uteplass via en heve- skyvedør. Det er tilrettelagt for innvendig solskjerming for vinduene (2 stk.) i spisestuen.

HTH leverer et delikat og stilrent kjøkken med praktisk "halvøy" og har godt med benk- og skapplass. Kjøkkenet er velutstyrt med integrerte hvitevarer fra Siemens som: induksjonstopp 80 cm med integrert ventilator, stekeovn, oppvaskmaskin og kjøleskap med frysedel. Fra kjøkkenet har du også egen utgang til hagedel.

Delikat og moderne bad med flislagte gulv og vegger. Badet er innredet med dusjhjørne, servant med eikeplate og 2. stk håndvask, vegghengt wc og opplegg til vaskemaskin.

Soverommet i 1. etasje har godt med plass til skap og kommoder.

Boligens 2. etasje har 3 romslige soverom med god plass til skap og kommoder. Videre har etasjen gang og loftstue med utgang til overbygget balkong via heve- skyvedør - hvor utsikten virkelig kommer til sin rett!

Vaskerom/teknisk rom med 300 liters varmtvannsbereder, aggregat for balansert ventilasjon med varmegjenvinning og opplegg for vaskemaskin.

Delikat og lekkert bad med 60x60 fliser på gulv og 10x 30 fliser på vegger. Badet har varmekabler i gulv og er innredet med dusjhjørne, servant med vask og vegghengt wc.

Boligen har en pen en-stavs parkett på alle soverom, stuer, gang i begge etasjer og kjøkken. Det er varmekabler i alle flislagte gulv i tillegg til stue og kjøkken.

En rålekker klassisk enebolig med moderne elementer som store vindusflater, fasadefelt med weberpuss samt listefrie løsninger i himlinger og rundt vinduer. Boligen leveres med Plejd systemt til både ledspotter og termostater for varmekabler.

Mesterhus har nå kampanje frem til 31 desember hvor dobbel garasje medfølger i prisen. Ta kontakt for ytterligere informasjon.

Mesterhus Tønsberg tar forbehold om feil i annonsen.

Beliggenhet:
Boligen ligger i det nyetablerte boligområdet Lefsrødåsen. Det er en forlengelse av Revetal 3, kun 5 minutter fra Revetal sentrum. Feltet ligger lengre inn i et eksiterende boligfelt og vil ligge i en blindvei uten gjennomgangstrafikk. Her har du flotte turmuligheter, nydelig utsikt og gode solforhold.

Kun 10 minutter kjøring til Tønsberg Golfklubb og 20 min til Tønsberg sentrum. Kort avstand til barnehage og skole. I nærområdene finnes det et rikt utvalg av flotte tur- og friluftsområder, sommer som vinter. Kort vei til idylliske badeplasser ved Langevann med benker, grillplass og stupetårn. På vinterhalvåret kjøres det opp et bredt løypenett med skiløyper.

I Revetal er det bussholdeplass med avganger mot blant annet Tønsberg. Ved Re Videregående ligger Ramneshallen med flott uteområde bestående av både kunstgressbane, grusbane og tennisbaner. I tillegg er det kort vei til Vålehallen, svømmehall og Meny Arena.

I Revetal sentrum finner du blant Posten, Vinmonopolet, Rema 1000, Meny, Burger King og andre servicetilbud

Tomtens beskaffenhet:
Flat og solrik eiertomt på 695 kvm. Tomten leveres med tilsådd plen slik situasjonskartet viser. Gruset innkjørsel og hellelagte plattinger.

Start ditt drømmeprosjekt

Meld interesse

Din kontaktinformasjon

Din melding

Ved å sende inn skjema opprettes det en brukerprofil på mesterhus.no, og dine opplysninger lagres i vår digitale løsning. Utfyllende informasjon om behandlingen og hvordan du kan slette din profil finner du i vår personvernerklæring. Mesterhus vil sende deg nyhetsbrev basert på ditt kundeforhold hos oss. Dersom du ønsker å reservere deg mot nyhetsbrev, gjør du det enkelt ved å krysse av nedenfor.