Hopp til hovedinnhold
1 / 0

1 solgt! Byggestart på unike eneboliger med Mjøsutsikt - Livsløpsst. - 3 sov - 2 bad - Carport - Rett ved Vind og marka

Vestre Totenveg 540 2817 Gjøvik
Pris fra
5 985 000 kr
Bjørn Åge Scheide
Salg- og markedssjef
Prosjektet bygges av

Mesterhus Innlandet

Rotstigen AS er din lokale totalentreprenør på Gjøvik, med solid erfaring i nybygg og rehabilitering helt siden 1946. Som en del av Mesterhus Innlandet dekker vi markedsområdene Gjøvik, Toten, Land, Hamar, Ringsaker, Stange og Elverum. Velg oss for kvalitet og trygghet i ditt byggeprosjekt. – Det blir som avtalt.

Gå til forhandlersiden

Nøkkelinfo

Soverom

3

Eierform

Selveier

Primærrom

150 m2

Gårdsnr.

102

Bruksnr.

50

Ditt nye hjem på Gjøviks tak!

  • Vi gir bort ett års gratis medlemskap i Mesterhus treningssenter på Vind, til våre kunder i A1-A8 på Østby terrasse!*

  • Sjekk gjerne ut prosjektets hjemmeside - Klikk på linken ute til høyre.


Her på Østbyhøgda like nedenfor Vind idrettspark ligger Østby terrasse, et flott boligfelt hvor vi er godt i gang med bygging. 8 eneboliger og 8 leiligheter er allerede solgt. 4 av boligene har allerede fått sine nye eiere, og alle stortrives her på Gjøviks tak :)

Nederst på feltet har vi planlagt 8 flotte eneboliger i kjede - for alle livets faser, og nå lanserer vi de første!

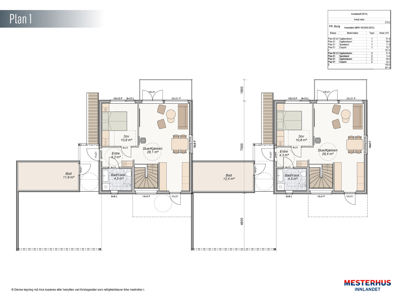
Boligene har 2 plan, med alle funksjoner på hovedplanet; Dobbel carport, stor sportsbod, entre, bad/vaskerom, soverom og en åpen stue-/kjøkkenløsning med utgang til terrasse i front og til balkongen med Mjøsutsikt.

I underetasjen har vi 2 soverom, tv-stue, bad/vaskerom, bod/teknisk rom og utgang til terrassen og hagen.
Boligene har også utvendig trapp slik at du enkelt kommer ned til hagen herfra.

  • Boligene har energiklasse B, og er kvalifisert for grønt boliglån.
  • Dette er nøkkelferdige boliger, og du betaler først når du flytter inn.
  • Godkjent byggetillatelse


Dette er en unik mulighet på Gjøvik, ta kontakt med Bjørn Åge på 416 60 066 for en hyggelig husprat og for å få tilsendt
leveransebeskrivelsen for disse boligene.



Noen av kvalitetene ved Østby terrasse:

  • Sammen skreddersyr vi ditt nye hjem
  • Vind Idrettspark med GOBB Arena, en ny flott flerbrukshall med Mesterhus treningssenter som nærmeste nabo.
  • Flotte turområder
  • Milevis med skiløyper om vinteren
  • Trygg skolevei ned til Kopperud barne- og ungdomsskole
  • Naturbarnehage rett ved feltet
  • Busstopp få meter fra inngangsdøra med avganger flere ganger i timen
  • Fantastiske solforhold, sommer som vinter
  • Nydelig utsikt over Mjøsa
  • Kort vei til dagligvarebutikker
  • Få minutter i bil til sentrum med shopping, kulturopplevelser og NTNU
  • Rolig, landlig og barnevennlig


Drømmer du om et flunkende nytt hjem?
Vi i Mesterhus Innlandet og Rotstigen har levert kvalitet innen nybygg og rehabilitering helt siden 1946!
Vi bygger ikke bare hus – Vi skaper hjem! – og det blir som avtalt.


Hvorfor flytte til Gjøvik?
Den hvite by ved Mjøsa ligger vakkert til med fin utsikt over Norges største innsjø.
Byen har en herlig småbysjarm med et rikt kulturliv, gode shopping- og restaurantmuligheter og ikke minst nærhet til flotte naturopplevelser.
Gjøvik kommune ligger i Innlandet fylke ved Mjøsas bredder. Vi er en moderne småby i vekst med over 30.000 innbyggere. 2/3 av innbyggerne bor i Gjøvik by, mens de øvrige bor i kommunedelene Biri, Snertingdal og Vardal.

Gjøviklivet byr på det beste av det meste, noe som gir tid til det som er viktigst.

Gode grunner for å flytte til Gjøvik
• Sentralt plassert på Østlandet, en time til alt
• Varierte og spennende jobbmuligheter
• Attraktive boliger og boområder
• Gode nærmiljø og trygge oppvekstsvilkår
• Aktivt kulturliv med 1400 arrangementer i året
• Levende sentrum med et godt utvalg innen servering og handel
• Mulighet for internasjonalt skoleløp fra barneskole til videregående
• Vertskapsby for NTNU og Fagskolen Innlandet
• Gode naturopplevelser året rundt
• Mjøsa som nærmeste nabo
• Et sosialt miljø fullt av hyggelige folk


Fordeler med å bygge nytt!
Vurderer du å bygge nytt, men trenger noen argumenter for å overbevise din kjære om at det er en god idé? Vi har samlet de beste grunnene til hvorfor det lønner seg å bygge nytt!

1. Tilpasset dine behov
2. Ingen oppussing på mange år
3. Bygg for framtiden
4. Lavere oppvarmingsutgifter
5. Godt inneklima
6. Du får et nytt hjem der ingen har bodd før deg
7. Ingen stressende og fordyrende budrunder
8. Mange tilvalgsmuligheter
9. Betal først når du flytter inn
10. Energiklasse B og kvalifisert for grønt boliglån

I annonsen bruker vi 3D-illustrasjoner av hvordan disse boligene og Østby terrasse kan bli seende ut når det er ferdig utbygd.
Illustrasjonene vil avvike fra virkelige forhold og leveransebeskrivelse. Det tas forbehold om eventuelle skrivefeil i annonse og vedlegg.
De flotte 3D-illustrasjonene er lagd av Øyvind Skogvoll i Atlantis Design.

*Max 2 gavekort pr. husstand.

Start ditt drømmeprosjekt

Meld interesse

Din kontaktinformasjon

Din melding

Ved å sende inn skjema opprettes det en brukerprofil på mesterhus.no, og dine opplysninger lagres i vår digitale løsning. Utfyllende informasjon om behandlingen og hvordan du kan slette din profil finner du i vår personvernerklæring. Mesterhus vil sende deg nyhetsbrev basert på ditt kundeforhold hos oss. Dersom du ønsker å reservere deg mot nyhetsbrev, gjør du det enkelt ved å krysse av nedenfor.