Hopp til hovedinnhold
1 / 0

1 av 2 SOLGT | Halla Boligpark | Tomannsbolig på 100 kvm | 3 Soverom og 2 bad | Carport

Halla Boligpark 8450 Stokmarknes
Pris fra
5 090 000 kr
Ketil Bergesen
Salgsleder/eiendomsutvikler

Nøkkelinfo

Soverom

3

Eierform

Eier (Selveier)

Primærrom

95 m2

Beskrivelse

Kort om

Kronstein Eiendom har gleden av å kunne lansere et nytt byggetrinn i Halla Boligpark!

Tredje byggetrinn i Halla Boligpark er en tomannsbolig med god standard, gjennomtenkt planløsning og et bruksareal på romslige 100 kvm. Dette er store og gode boliger med hele 3 soverom og 2 bad. Boligene passer derfor spesielt godt til barnefamilier.

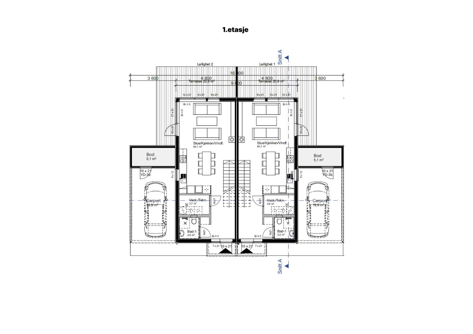
Første etasje er praktisk innredet og inneholder følgende:

  • Gang med god plass for garderobe og oppbevaring av yttertøy.
  • Bad og vaskerom.
  • Åpen og meget romslig stue-/kjøkkenløsning på hele 40 kvm.

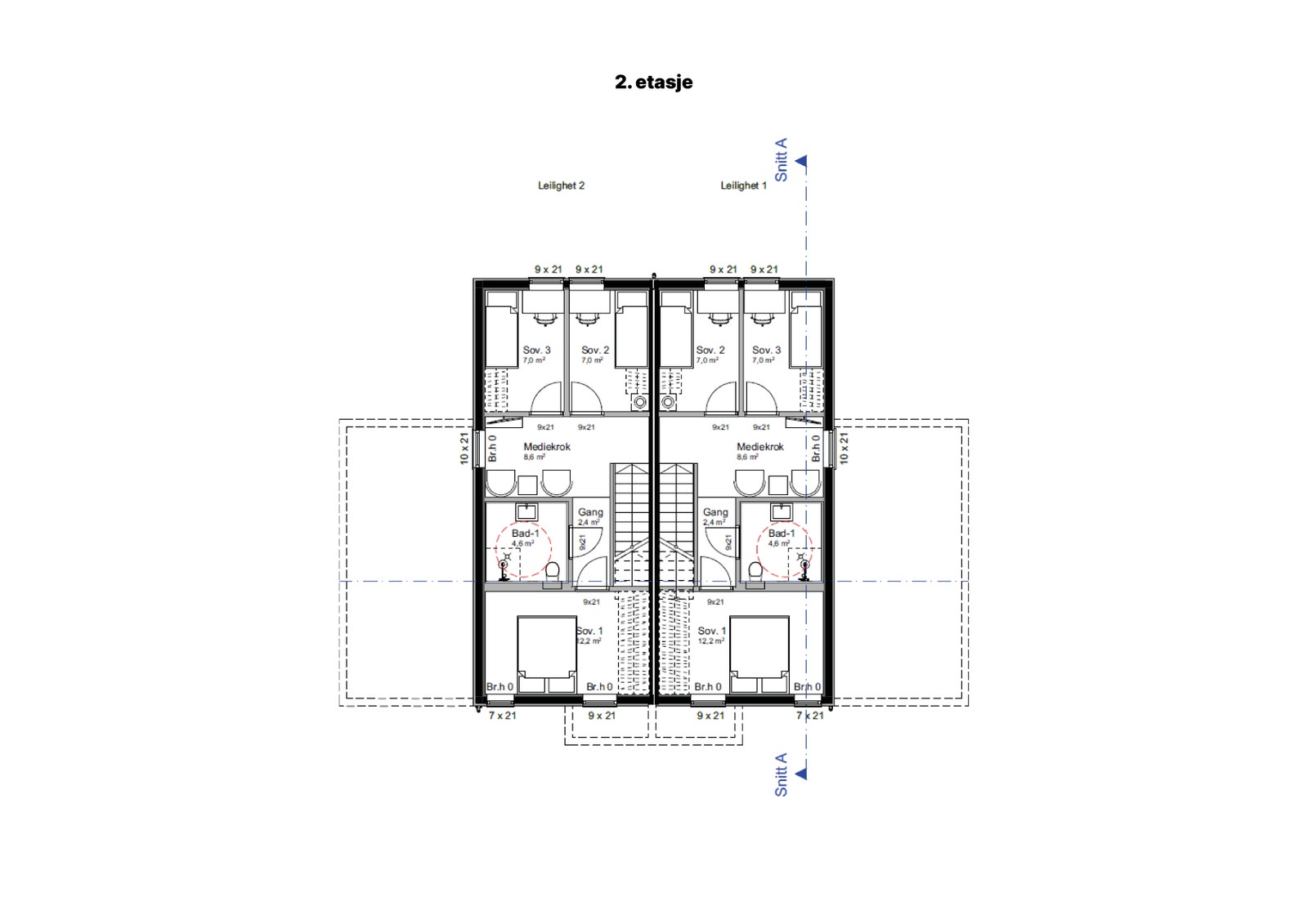
Andre etasje er godt utnyttet og byr på:

  • Hele 3 soverom med god størrelse.
  • Koselig mediekrok som også kan benyttes som en liten tv-stue.
  • Hovedbad

Tomannsboligene får god intern beliggenhet i Halla Boligpark og ligger ca. midt i boligfeltet med sørvendt fasade. Dette sørger for gode solforhold på dagtid! I tillegg er det enkel adkomst fra stue til uteområde som vender seg mot grøntdraget i boligfeltet.

Her vil du overta en nøkkelferdig bolig med god standard som blir levert i tråd med kravene i TEK-17. Kjøpere vil få tilgang til en tilvalgsportal hvor man kan gjøre de tilpasninger man selv måtte ønske.


Kan dette være noe for deg?

Benytt knappen meld interesse eller ring oss for en hyggelig boligprat. 

Enkel leveransebeskrivelse

INNVENDIGE OVERFLATER

Gulv på bad vil ha 60x60 flis, vaskerom vil ha belegg og øvrige oppholdsrom vil få en lys og moderne laminat.

Vegger på våtrom vil ha baderomsplater, øvrige oppholdsrom vil ha malte plater.

Himlinger i oppholdsrom vil ha malte himlingsplater.

KJØKKEN

Komplett kjøkken fra Drømmekjøkken leveres av XL-Bygg Sortland.

Som standard leveres kjøkken med integrerte hvitevarer.

VÅTROM

Bad i 1. etasje leveres med baderomsinnredning, dusjnisje og toalett.

Bad i 2. etasje leveres med baderomsinnredning, dusjnisje og toalett.

Vaskerom leveres med varmtvannsbereder og opplegg for vaskemaskin.

UTVENDIG

Bordkledning ferdig grunnet og 2 toppstrøk.

Impregnert terrassebord.

Takrenner og nedløp i stål.

Tak med takpapp.

VARME

I 1. etasje leveres det som standard gulvvarme i alle rom foruten om vaskerom. I 2. etasje vil bad leveres med gulvvarme. I tillegg leveres vedovn i stue/kjøkken.

VENTILASJON

Boiligene leveres med balansert ventilasjon med varmegjenvinning.

ELEKTRISK ANLEGG

El-anlegg leveres med automatsikringer, jordfeilbryter, overspenningsvern og nødvendige antal el-punkter i samsvar med bransjenorm NEK-400.

TV/INTERNETT

Boligene leveres klargjort med fiber.

RØRSYSTMER

I boligen blir ledningene for varmt og kaldt vann lagt i “rør-i-rør” som sikkerhet mot vannskader. Fordelingsskap plassere i forbindelse med våtrom.

Se salgsoppgave og prosjektets hjemmeside for ytterligere informasjon. 

Nabolaget du vil hjem til

Halla boligpark ligger flott til i Vestbakken på Stokmarknes med gangavstand til det aller meste. Her kommer en god boligmiks med leiligheter, tomannsboliger og rekkehus. Totalt ca. 90 boenheter. Området har fin solgang og de fleste boligene vil ha utsikt mot sjø og fjell.

Vi har en tydelig målsetning om å skape et godt og velfungerende nabolag som gir en følelse av tilhørighet for alle. Derfor legger vi også mye innsats i utforming av fellesområdene med fokus på å skape naturlige møteplasser.

Allerede er det bygget 2 flermannsboliger og område begynner virkelig å ta form! 

HEIME

Heime er et nyskapende bo- og trivselskonsept utviklet for å skape samhold og tilhørighet blant beboerne i et nabolag. Gjennom å tilby og organisere gode møtesteder tilrettelegger Heime for at alt fra sosiale opplevelser til deling av verktøy blir en enkel og naturlig del av hverdagen.