Hopp til hovedinnhold
1 / 0

Kun 1 ledig!

Vea Sjoarveg 1 4276 Veavågen
Pris fra
4 397 000 kr

Nøkkelinfo

Soverom

4

Eierform

Eier (Selveier)

Primærrom

121 m2

Gårdsnr.

5

Bruksnr.

96

Beskrivelse

Garvik skal nå bygge to moderne eneboliger i Veavågen

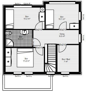
Særdeles god og fleksibel planløsning med 2 bad, eget vaskerom, stue/kjøkken i åpen løsning og 3/4 soverom samt loftstue. 2. etg. kan leveres med ulike planløsninger, se bilder for forslag til alternativ.

Garvik sine boliger holder alltid høy standard og gjennom mange års erfaring fra boligbygging på Haugalandet vet vi hva som betyr mest for deg som kunde.
Selv om vi har valgt moderne og stilfulle produkter av god kvalitet i denne boligen vil det være gode muligheter for å gjøre egne tilpasninger og tilvalg. Hver bolig har min. 5kvm utvendig sportsbod.

Carport kan leveres som tilvalg.

Her er noe av det vi har lagt spesielt vekt på i denne boligen:

  • Royalimpregnert kledning
  • Svarte karmer på vinduene
  • Kompakte innerdører med dempelist i karm
  • Trapp med hvitlaserte trinn i eik, rekkverk med stålspiler og hvite vanger/håndrekke
  • Listefritt i tak og rundt vindu
  • Lekkert kjøkken fra "Drømmekjøkkenet" med Integrerte hvitevarer som inkluderer stekeovn, induksjon koketopp, oppvaskmaskin og kombiskap kjøl/frys
  • Terrasseplatting foran kjøkken/stue med royalimpregnerte terrassebord som krever svært lite vedlikehold.


Oppvarming
Svart stålpipe og ovn fra Nordpeis type DUO 5 DV.
Varmekabler på bad i 1. og 2. etasje. samt i vaskerom

Tomt/utomhus
Hver tomt vil være ca. 450-500 kvm og vil bli endelig fastsatt ved oppmåling av kommunen. Mindre avvik på tomtestørrelse kan forekomme og vil ikke gi grunnlag for prisavslag eller kompensasjon.

Oppkjørsel/snuplass/gårdstun asfalteres.
Øvrige uteområder maskinplaneres med stedlige masser.

Bygging forutsetter endelig godkjenning fra Karmøy kommune.