Form 2.0 – fleksibelt og moderne hus
Nøkkelinformasjon
Laster pris
Soverom
Bad
Etasjer
Grunnflate (BYA)
Bruksareal (BRA)
Internt bruksareal (BRA-i)
Største lengde
Største bredde
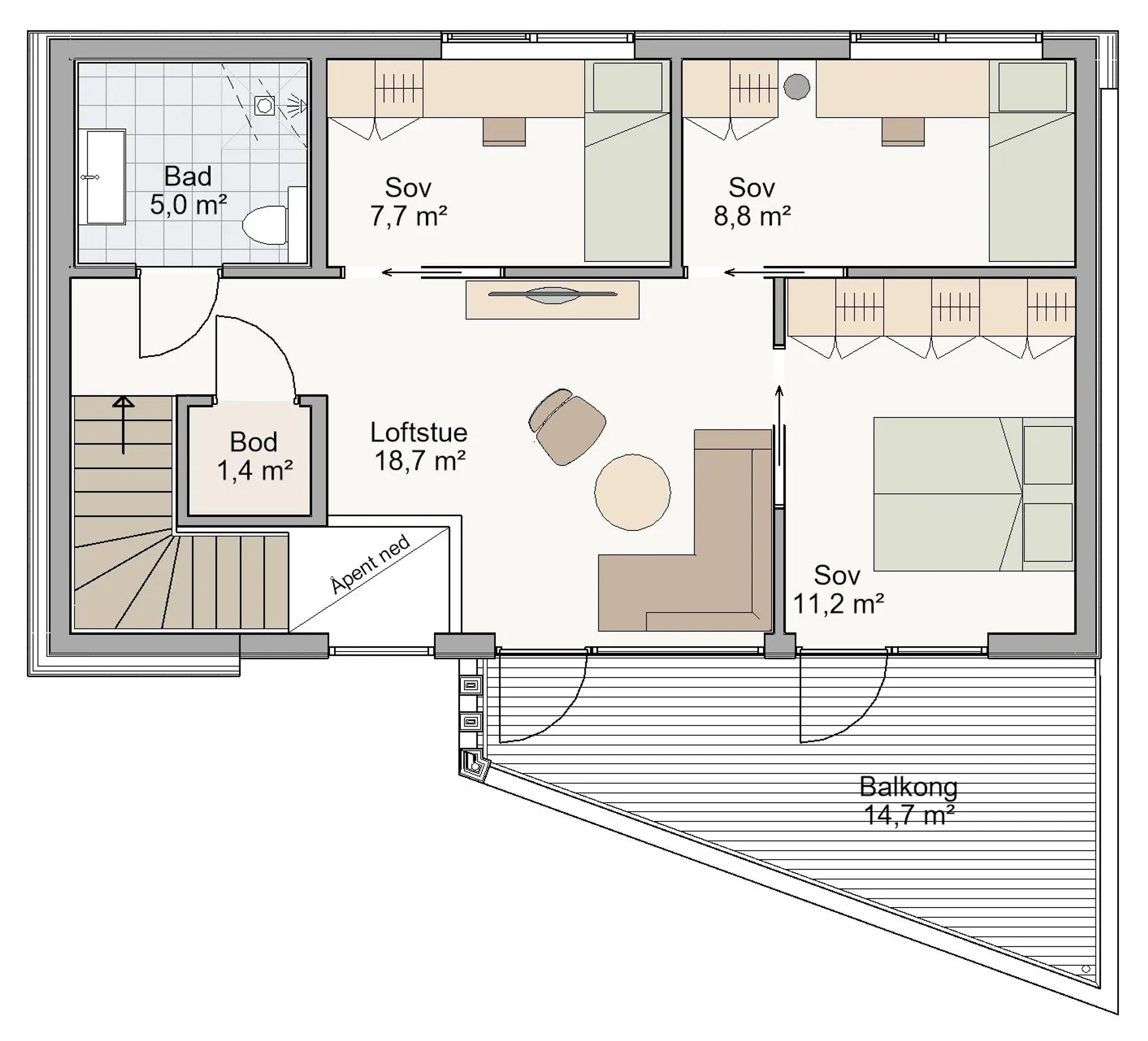
Form 2.0 er et arkitektonisk uttrykksfullt hus med moderne linjer. Innholdsmessig rommer huset mye på sine 125 m² med tre soverom, to stuer, bad og gjestetoalett, samt en romslig stue/kjøkkenløsning.
Boligen er godt tilrettelagt for familielivet med lagringsplass tilgjengelig i begge etasjer, og den praktiske bi-inngangen rett inn til det romslige vaskerommet er perfekt for travle hverdager når barna kommer skitne hjem eller du har luftet hunden en regnværsdag.
Form 2.0 er spesielt egnet for smale tomter, med sin bredde på 6,4 meter og et bebygd areal på under 100 kvadratmeter. Balkongen i andre etasje er fleksibel og kan tilpasses både etter tomten og dine ønsker og behov. Fleksibiliteten til Form 2.0 gjør det mulig å tilpasse huset til forskjellige tomter og konfigurasjoner, enten det er som enebolig, tomannsbolig eller enebolig i rekke.
Arkitektonisk utmerker Form 2.0 seg med et sterkt uttrykk, preget av dynamiske former og linjer som skaper en spennende fasade. De store vindusflatene gir rikelig med naturlig lys og skaper lyse og luftige rom, spesielt i stue-/kjøkkendelen som har gjennomgående lys.
Form 2.0 er den ideelle løsningen for deg som søker en arealeffektiv bolig med moderne design. Med muligheten for tilpasning etter dine behov, gir dette huset deg friheten til å skape ditt drømmehjem.
Plan- og fasadetegninger:
Ønsker du en annen plantegning?
Vi tilpasser modellen etter dine behov – dimensjoner, rom og planløsning kan endres etter dine ønsker. Ta kontakt med din nærmeste byggmester.





