SlettnesFunkishus med takterrasse
Nøkkelinformasjon
Laster pris
Soverom
Etasjer
Grunnflate (BYA)
Bruksareal (BRA)
Internt bruksareal (BRA-i)
Største lengde
Største bredde
Slettnes er et moderne funkishus i tre etasjer, med en spektakulær takterrasse som gir en unik utsikt over omgivelsene. De fem soverommene gir plass til både en stor familie og hjemmekontor eller gjesterom. Dobbelgarasjen med bod rommer både bil og andre eiendeler.
Slettnes er et moderne og funksjonelt hus designet for et komfortabelt og enklere liv. Huset har en gjennomtenkt, innholdsrik og fleksibel innredning. Dette gir mulighet til å tilpasse hjemmet til individuelle behov, som for eksempel antallet soverom eller størrelsen på stue, soverom eller kjøkkenet.
Fantastisk takterrasse
Slettnes er et funkishus med en fantastisk takterrasse. Takterrassen ligger på toppen av huset, og gir en fantastisk utsikt over omgivelsene. Kanten gjør også at øverste etasje stikker opp som en «hytte på taket». Den er kledt i tverrlagt tre for å skape kontrast til resten av funkishuset. Allerede tidlig i epoken blandet man mur og tre og «hytta» er et frekt tillegg til en av funksjonalismens første regler fra 1926; Flatt tak med terrasse.
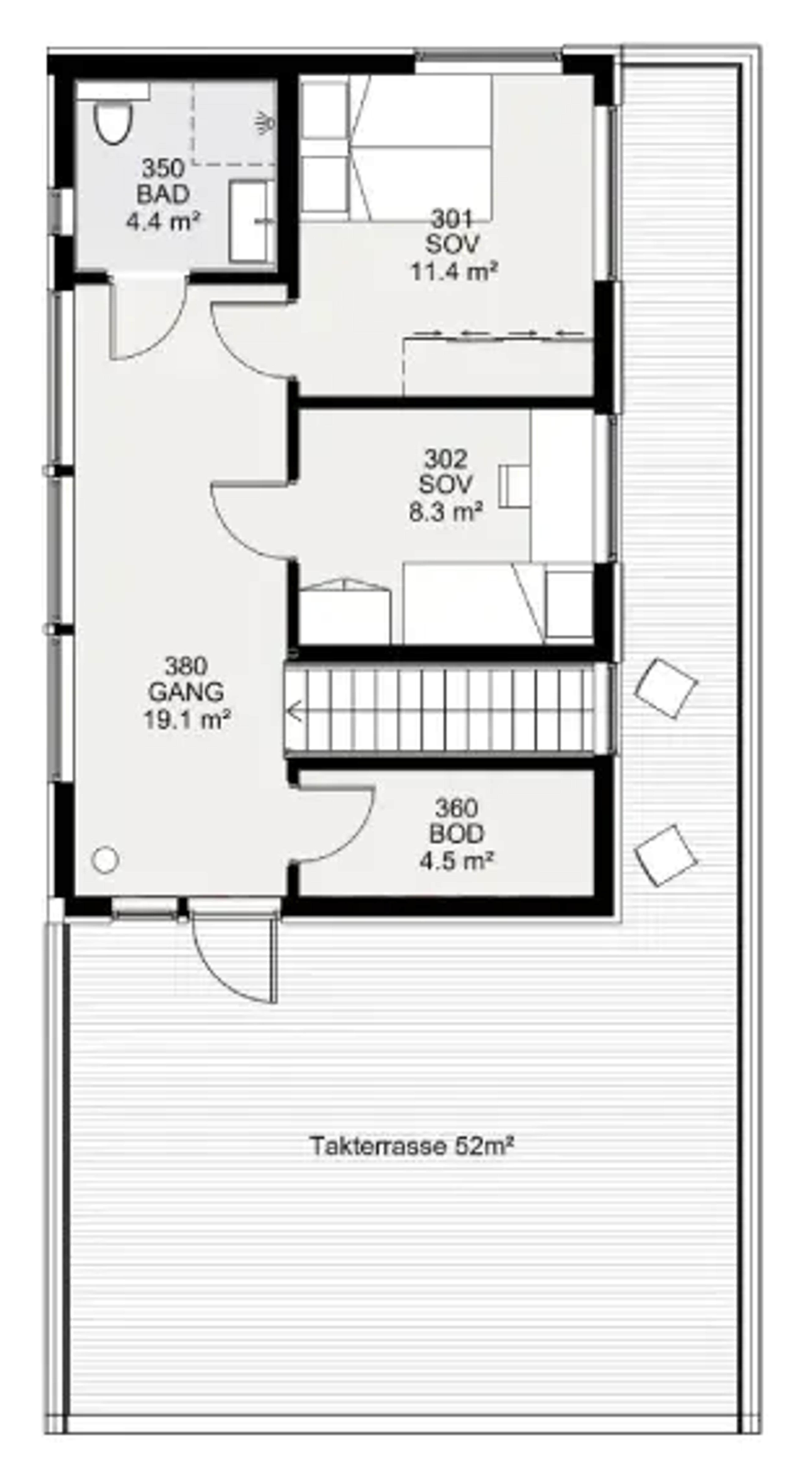
I toppetasjen finner du en praktisk bod for puter og annet utsyr rett ved terrassedøren. I tillegg to fine soverom hvor et har god plass til dobbeltseng og et praktisk bad rett ved soverommene.
Skjermet kjøkken med lys fra to sider
Hovedetasjen har også store utearealer med lang terrasse på to sider, den ene også overbygget. Kjøkkenet er romslig og ligger adskilt fra stue men uten dør slik at du får inn lys fra to sider. Til sammen er stue og kjøkken på 61 kvadratmeter. I denne etasjen finner du også husets største soverom med tilhørende bad og garderobe. I sokkeletasjen er det ytterligere to soverom, et bad, en bod, eget vaskerom og stor entré med plass til smarte garderobeløsninger.
Funkis fordi form og funksjon følger hverandre
Funkis kommer jo fra ideen om at form og funksjon følger hverandre. Integrert i huset er det en dobbeltgarasje på 36 kvadratmeter. I bakkant av garasjen er det en bod med to innganger, hendig til lagring av gressklipper, hagesakser, dekk, verktøy og annet utstyr som trengs til bilene og på grunnplanet. Fra garasjen kan du gå rett inn i huset via vaskerommet, og alle som har hund eller barn vet hvor praktisk det kan være.
Dette huset gjør seg godt på skrå tomt. Det gir deg både privatliv og godt utsyn, og er en tidløs bolig som er svært romslig og funksjonell.
Slettnes er tegnet av Mestergruppen Arkitekter.
Plan- og fasadetegninger:
Ønsker du en annen plantegning?
Vi tilpasser modellen etter dine behov – dimensjoner, rom og planløsning kan endres etter dine ønsker. Ta kontakt med din nærmeste byggmester.





