Norrøn Bolig AS
Norrøn Bolig bygger alt fra eneboliger, rekkehus, leiligheter og fritidsboliger til større bolig- og hyttefelt. I tillegg bygger vi om og rehabiliterer boliger etter kundens ønsker.
Gå til forhandlersidenNorrøn Bolig bygger alt fra eneboliger, rekkehus, leiligheter og fritidsboliger til større bolig- og hyttefelt. I tillegg bygger vi om og rehabiliterer boliger etter kundens ønsker.
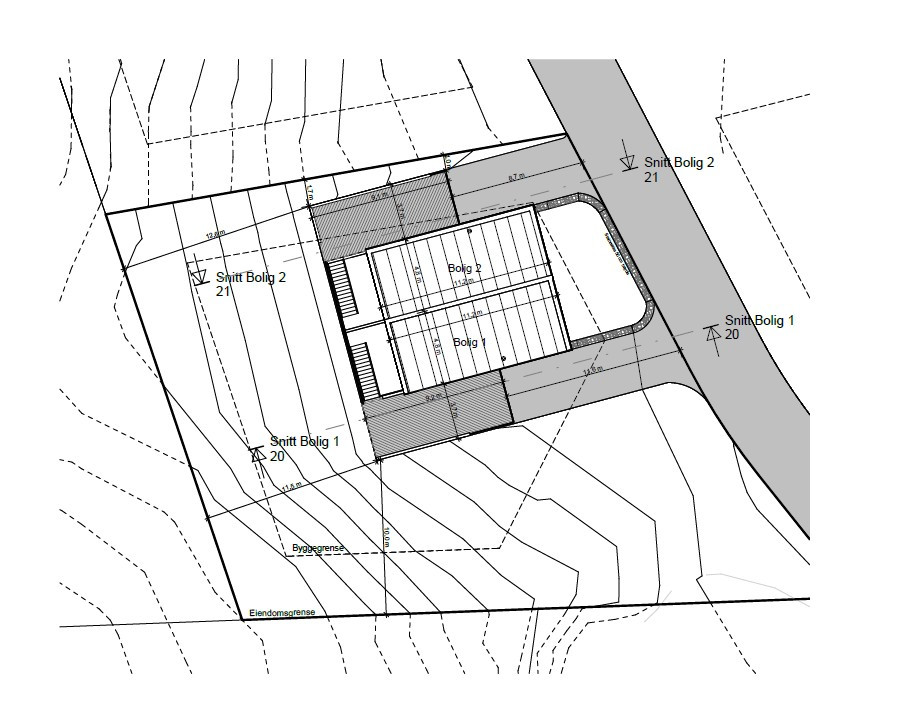
Gå til forhandlersidenI Josefinestien skal vi bygge 6 moderne og svært innholdsrike boliger på 2 etasjer. Foreløpig skal vi bygge de to første boligene i boligfeltet. De 4 andre boligene kommer for salg i en egen annonse etterhvert.
Boligene har bla. 3 soverom, carport med sportsbod og god terrasse. Boligene ligger i nærhet til skole og barnehage og i enden av en blindvei. Frøyland Gårdsbarnehage ligger bare et steinkast unna.
Bolig 1 og 2 bygges vertikaldelt, mens de øvrige boligene i boligfeltet bygges i rekke med terrasse mellom seg.
Boligene er arealeffektive med gode planløsninger. Boligene inneholder hele 3 soverom og har store og gode terrasser. Planløsninger kan selvsagt endres/tilpasses dine ønsker og behov. Ta gjerne kontakt så ser vi på hvilke muligheter som finnes.
Boligene har et moderne preg med store vindusflater og åpen himling i 2. etg. som innbyr til en åpen og sædeles god romfølelse.
Bolig 1 og 2 i Josefinestien er de to første av de 6 boligene du kommer til i boligfeltet. Boligen ligger på en høyde og har nydelig utsikt utover Frøyland. Boligene er vertikaldelte
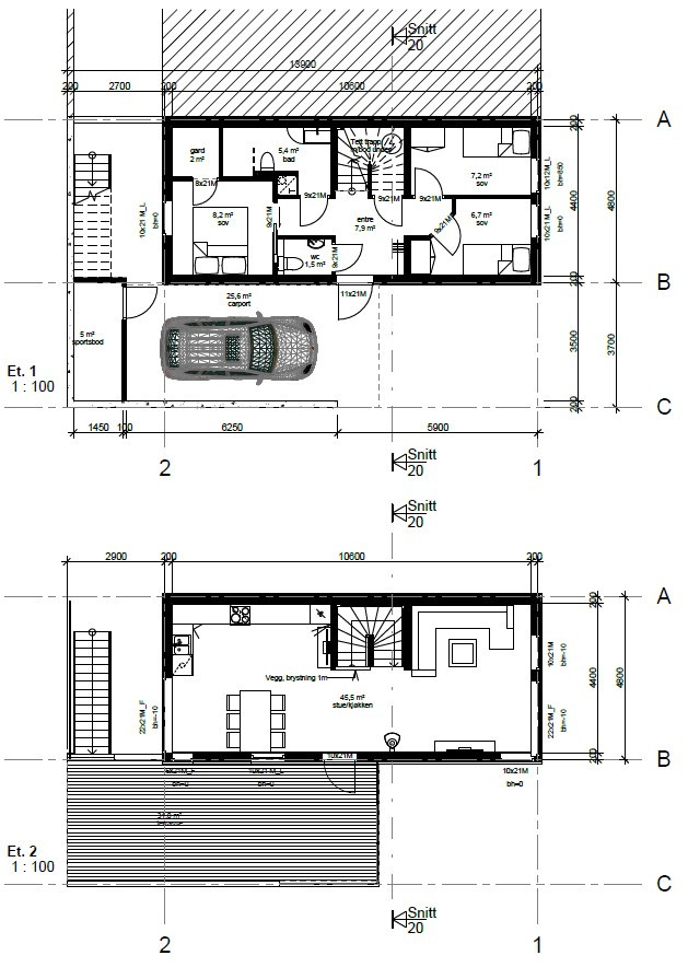
Boligene går over 2 plan og inneholder:
1.etasje
2.etasje
Ta kontakt for fullstendig leveransebesrkivelse.
Planløsninger kan endres og tilpasses dine ønsker og behov. Ta gjerne kontakt for å se på hvilke muligheter som finnes.
Boligene leveres klar for maler og gulvlegger arbeid, som kan utføres som egeninnsats. Vi kan også levere boligen nøkkelferdig mot tillegg i pris.
PRISER:
Bolig 1: kr. 4 390 000,- klar for maler og gulvleggingsarbeid.
Bolig 2: kr. 4 290 000,- klar for maler og gulvleggingsarbeid.
OMKOSTNINGER:
I tillegg til kjøpspris tilkommer offentlige avgifter:
Sum omkostninger kr. 8. 850,-
STØRRELSER:
Bolig 1: areal:
Totalt BRA: 123 m2
Bolig 2: areal:
Totalt BRA: 124,6 m2
Bolig 1 og 2 blir fradelt med et eget Gnr/Bnr/Snr og vil får eksklusiv bruksrett til sine uteområder.


Høljebakkane 12Egersund

NyeveienEgersund

Ytstebrød, EigerøyEgersund

HestnesEgersund


DyrnesbakkenEgersund

Øvre Myllarsmarka 3, RundevollEgersund

Søndre Svanesvei 17,19,23, 25Egersund