Hopp til hovedinnhold
1 / 0

Flotte, innholdsrike tomannsboliger med solrik hage, takterrasse og carport/garasje. Nær Jessheim sentrum!

Pris fra
6 354 810 kr
June Andersen
Salgskonsulent
Prosjektet bygges av

Fenstad Bygg AS

Fenstad Bygg har utført byggeoppdrag siden deres start i 1969. Vårt virkeområde er hovedsakelig på Øvre Romerike, med kommunene Ullensaker, Nes, Eidsvoll, Sørum, Nannestad, Hurdal og Gjerdrum som primærområde.

Gå til forhandlersiden

Nøkkelinfo

Soverom

3

Eierform

Eier (Selveier)

Primærrom

63 m2

Gårdsnr.

111

Bruksnr.

154

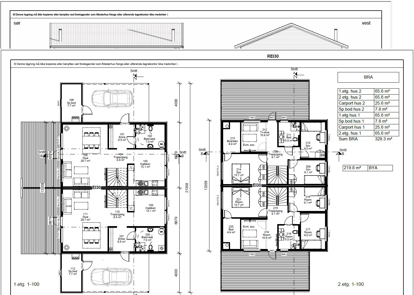
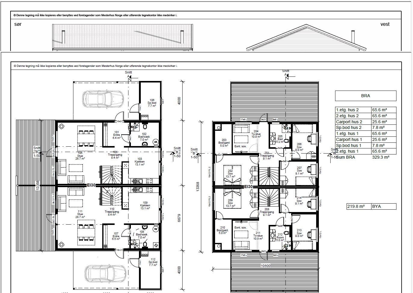
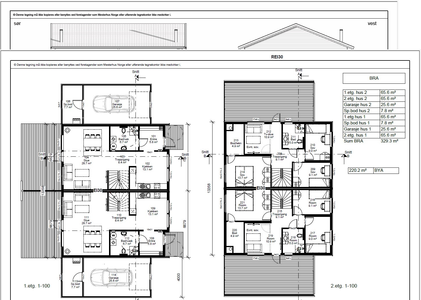
Vertikaldelt tomannsbolig

Flotte tomannsboliger på Algarheimsfjellet - En unik mulighet for å sikre seg en helt ny bolig på et helt nytt boligfelt i rolige og familievennlige omgivelser nær skole, barnehage, buss, turområder og med kort vei inn til Jessheim sentrum.

Se prosjektets hjemmeside - https://algarheimsfjellet.no

Felt BFS5 består av 7 vertikaldelte tomannsboliger, til sammen 14 enheter.

Boligene går over to fulle plan, har en god planløsning og fremstår i moderne stil. Optimale solforhold med både markterrasse ut fra stue og takterrasse over carport/garasje. Carport/garasje er beregnet for 1 bil og det er god plass i tilliggende sportsbod.

Hus nr. 7 - 14 kan leveres med Alt. 3 løsning med lukket garasje. Pristillegget for garasje er kr. 120.000,-. Det er et krav at begge tilknyttede enheter blir like, ergo vil den første som signerer kontrakt få avgjøre hvorvidt det blir carport eller garasje på valgte enhet.

Hver bolig disponerer egen hageparsell i tillegg til at det blir etablert et stort, felles grøntområde med lekeplass i tilknytning til boligene.

Inneholder

1. Etasje:
Entré: God entré med plass til skyvedørsgarderobe. Sikringsskap plassert på vegg mot bad. Malte veggflater og fliser med varmekabel i gulv.

Bad/Vask: Romslig, flislagt bad/vask med vegghengt toalett, dusj med innsvingbare glassdører, hvit 60 cm baderomsinnreding med skuffer og speilskap med lys. Varmekabel i gulv.

Kjøkken: Tidløs og moderne kjøkkeninnredning type Scala med hvite, profilerte fronter fra Sigdal. Innredningen er takhøy, har integrerte hvitevarer, laminert benkeplate og kitchenboardplate over benk. God spiseplass ved vindu. Malte veggflater og 1-stavs eikeparkett på gulv.

Stue: Stor og fin stue med peisovn og utgang til stor markterrasse på ca. 27 m2. Levegg er etablert mot nabo. Store vindusflater gjør stuen lys og trivelig. Malte veggflater og 1-stavs eikeparkett på gulv.

2. Etasje:
Tv-stue/Sov: Praktisk tv-stue som også enkelt kan bli til et fjerde soverom ved behov. Rommet har utgang til stor, solrik takterrasse på ca. 26 m2. Malte veggflater og 1-stavs eikeparkett på gulv.

Sov I: Romslig og behagelig hovedsoverom med direkte tilknytning til bod som ved ønske kan benyttes som «walk-in» garderobe. To frittstående garderobeskap medfølger også. Malte veggflater og 1-stavs eikeparkett på gulv.

Sov II og III: To gode, tilnærmet like soverom. Begge med frittstående garderobeskap. Malte veggflater og 1-stavs eikeparkett på gulv.

Bad: Pent, flislagt bad med vegghengt toalett, dusj med innsvingbare glassdører, hvit 120 cm baderomsinnredning med skuffer og speilskap med lys. Varmekabel i gulv.

Gjennom tilvalgsprosesser står man også helt fritt til å gjøre endringer etter egen smak, ønske og behov – litt avhengig av hvor langt vi har kommet i byggeprosessen.

Oppvarming: Termostatovner, varmekabel i Entré og på begge Bad, samt peisovn i Stue.

Kledning: Boligene leveres grunnet og ferdig malt. Liggende panel i farge 0734 Brunsvart og stående panel i farge S 3020-G90Y.

Tomt: Tomtene blir pent opparbeidet med asfalterte innkjøringer og gårdsplasser, samt ferdigplen. Gjerder og øvrig beplantning leveres ikke.

NB: Alle bildene i denne annonsen er kun illustrasjoner, noen avvik kan forekomme.

Beliggenhet

Mesterhus Fenstad Bygg AS har gleden av å presentere et nytt, stort boligfelt på populære Algarheim i Ullensaker kommune, ca. 5 km øst for Jessheim sentrum. Her får man det beste av to verdener ved å bo i rolige og familievennlige omgivelser, samtidig som det kun er en kort bil- eller sykkeltur inn til Jessheims bykjerne.

Algarheimsfjellet vil bli etablert med totalt 71 eneboliger, 18 tomannsboliger, 83 rekkehus/kjedede boliger og 96 leiligheter, til sammen om lag 268 boenheter. Området har umiddelbar nærhet til vakkert turterreng, samt kort vei til flere barnehager, skoler, butikker og offentlig kommunikasjon. Algarheim barneskole med blant annet stor flerbrukshall, kunstgressbane og basketballbane, ligger rett ved feltet.

Nærmeste dagligvareforretning er Extra Algarheimvegen. Fra feltet er det kun få minutters gange til nærmeste bussholdeplass, hvor buss nr. 440 har avganger hvert kvarter på dagtid/rushtid.

Jessheim fikk bystatus i 2012 og er administrasjonssenteret i Ullensaker kommune i Akershus. Tettstedet er blant landets raskest voksende, med godt over 23.000 innbyggere – et attraktivt satsningsområde som kom med etableringen av Oslo lufthavn Gardermoen på 90-tallet og som fortsatt er under stor utvikling og utbygging. Her finner man et hav av fine forretninger, bymessige fasiliteter og gode servicetilbud. Jessheim storsenter er Øvre Romerikes største og rommer over 150 butikker og spisesteder, – i tillegg til frisør, helse- og velvære. I Storgata ligger det flere gode restauranter, kaféer, barer og utesteder. Hvert år arrangeres Jessheimdagene, et populært arrangement som byr på flotte konserter, mat- og salgsboder, samt mange morsomme aktiviteter.

Noe for alle

For den kulturelle har Ullensaker kulturhus alltid fullt program enten man ønsker å gå på kino, revy, teater eller konsert. Det arrangeres også kunstutstillinger her.

Ønsker man å være aktiv kan man ta turen til Jessheimhallen, Jessheimbadet eller til en av de mange treningssentrene rundt om i byen. Fra Algarheimsfjellet er det gjennomgående ferdsel til de sammenhengende friluftsområdene innover mot Brennifjellet. I tillegg til Jessheimmarka innbyr området til gode tur-, trenings- og rekreasjonsmuligheter sommer som vinter.

Naturperlen Nordbytjernet er et attraktivt samlingssted for små og store gjennom hele sommeren. Her er det badestrand, gressplen, kiosk, grillplass, bade- og fiskebrygge, volleyballbane, samt en fin tursti man kan følge rundt hele tjernet.

På nordsiden av tjernet ligger Romerike Folkehøgskole og på sørsiden ligger Nordby ungdomsskole. Jessheim videregående skole er den største videregående skolen i Akershus og ligger i Jessheim sentrum.

Meget god offentlig kommunikasjon fra Jessheim togstasjon med avganger hver halvtime. Det tar ca. 40 min inn til Oslo S. På Jessheim stasjon ligger også bussterminalen som gir reisende sømløse overganger mellom tog, buss, pendlerparkering og taxi. Det er etablert en flott sykkeloppstillingsplass under tak. Med bil tar ca. 15 minutter til Oslo lufthavn, 25 minutter til Lillestrøm og rundt 40 minutter inn til Oslo sentrum.

Kostnader og oppgjør

Kjøpesum
Hus 1 - 5: Kr. 6.354.810,-
Hus 6 - 10: Kr. 6.484.500,-
Hus 11 - 14: Kr. 6.679.035,-

Hus 7 - 14 kan leveres med garasjeløsning som vis på Alt. 3, mot et tillegg på kr. 120.000,- per enhet. To og to enheter må søkes med lik fasade, så den første som signerer vil da avgjøre hvorvidt den aktuelle tomannsboligen bygges med carport eller garasje.

Omkostninger
Dok. Avg. 2,5% Kr. 62.500,-
Grunnbok Kr. 240,-
Tgl. Pant Kr. 500,-
Tgl. Skjøte Kr. 500,-
Oppstartsgebyr Sameiet Kr. 5.000,-

Oppgjør
10 % ved kontrakt og rest kjøpesum ved overtakelse.

Start ditt drømmeprosjekt

Meld interesse

Din kontaktinformasjon

Din melding

Ved å sende inn skjema opprettes det en brukerprofil på mesterhus.no, og dine opplysninger lagres i vår digitale løsning. Utfyllende informasjon om behandlingen og hvordan du kan slette din profil finner du i vår personvernerklæring. Mesterhus vil sende deg nyhetsbrev basert på ditt kundeforhold hos oss. Dersom du ønsker å reservere deg mot nyhetsbrev, gjør du det enkelt ved å krysse av nedenfor.